All reviews on Stacked are editorially independent. Developers can advertise with us, but
cannot
pay
for,
edit, or preview our reviews.
New Launch Condo Reviews
Newport Residences Review: Rare Freehold Development in the CBD with Panoramic Sea Views from $3,012 psf
January 17, 2026 24 min read
| Project: | Newport Residences |
|---|---|
| District: | 2 |
| Address: | 80 Anson Road |
| Tenure: | Freehold |
| No. of Units: | 246 Units |
| Site Area: | ~54,802 sq ft |
| Developer: | City Developments (CDL) |
| TOP: | 2030 |
Newport Residences marks the first new launch in 2026, with the project entering the market after private home prices reached new highs in 2025 that was marked by a 3.4% y-o-y increase in the URA private residential price index.
The Core Central Region (CCR) saw renewed buying interest with cumulative resale transactions reaching a four-year high of 2,592 units in 2025. This bodes well for Newport Residences, which is a project in the CCR, as buyers continue to appreciate the value of a centrally located condo.
The indicative prices at Newport Residences start from:
- $1.298 million ($3,012 psf) for a 431 sq ft one-bedroom unit
- $1.968 million ($3,046 psf) for a 646 sq ft two-bedroom unit
- $3.238 million ($3,304 psf) for a 980 sq ft three-bedroom unit
- $8.28 million ($4,006 psf) for a 2,067 sq ft four-bedroom premium unit
From the outset, the prices for the smaller units at Newport Residences appear to be attractive for a freehold development in the CBD.
The launch of Newport Residences is long awaited as its developer, City Developments (CDL) postponed the project launch which had previously been set to enter the market in 2023. This move was hot on the heels following news of the additional buyer’s stamp duty (ABSD) hike in April that year, which would have negatively affected property purchases by foreigners.

For our review, it’s difficult to estimate the actual development breakeven cost for CDL since the new project is a redevelopment of the former Fuji Xerox Towers, a commercial asset which CDL had held on its books since the 1980s.
CDL’s decision to redevelop the site was likely spurred, in part, by the CBD Incentive Scheme, which was introduced to encourage the conversion of older office buildings in the CBD into new mixed-use developments.
CDL leaned into another urban rejuvenation incentive by the government to develop Union Square Residences, a mixed-use project that comprises Grade A offices, retail, co-living apartments, and 366 luxury apartments. This project was developed under the Strategic Development Incentive (SDI) scheme and sits at the former sites of Central Mall and Central Square. It was launched for sale in November 2024.
Although it launches after Union Square, redevelopment plans for the former Fuji Xerox Towers started earlier, and Newport Residences marks the first freehold mixed use development under the CBD Incentive Scheme. The entire development, named Newport Plaza, also comprises serviced apartments from levels 10 to 22, Grade A offices (Newport Tower) from levels 2 to 9, and F&B outlets on level 1.

The launch of Newport Residences comes nearly a year after its neighbour, the 351-unit One Bernam, sold out last February. The 99-year leasehold development launched in May 2021 and the average selling price at the time was $2,650 psf. The final sales phase last year was marked by steep developer discounts with price discounts of up to $830,000 for three-bedders.
Bear in mind that One Bernam is a 99-year leasehold development, and when Newport Plaza completes in 2030, residents of One Bernam will likely have their views towards the sea eventually blocked.
Thus, there’s no doubt that Newport Residences will be the more ‘premium’ development when we compare these two projects.
With its location at the edge of the Greater Southern Waterfront, and its central location in Tanjong Pagar, the launch of Newport Residences is significant as a bellwether to buyers appetite for new CBD developments, especially this particularly rare one that owners can hold in perpetuity.
In this article, we will discuss more about Newport Residences’ location, facilities, and unit layouts. So stay on as we explore further.
So many readers write in because they're unsure what to do next, and don't know who to trust.
If this sounds familiar, we offer structured 1-to-1 consultations where we walk through your finances, goals, and market options objectively.
No obligation. Just clarity.
Learn more here.
A vertical town and an urban community
Designed by Japanese architectural firm Nikken Sekkei, in partnership with local architectural firm ADDP Architects, Newport Plaza’s design concept features a biophilic design and its architecture seems to convey an urban hill that serves as a green lung for the area.
The interweaving cascading gardens create a series of communal spaces for the Grade A offices, with stepped roof and sky terraces offering interactions with colleagues and nature.

Since the residential towers start from level 23, the curved design maximises the sea views for units at Newport Residences. For most units facing the Southeast and Southwest directions, views are completely unblocked for now, with the remaining container facilities at the nearby Tanjong Pagar Port set to gradually move out in the coming years.
That said, for the other facings there are still a number of neighbouring buildings; some, like ABI Plaza and the OCBC Campus, are not high-rise developments, while others such as AIG Building and M Hotel are slightly higher between 29 to 34 storeys. This means that mostly high-floor units at Newport Residences, such as those above the 35th floor, will enjoy the best views.

Newport Residences is also located in a part of the CBD that has seen relatively less attention in recent years.
Hear me out. Some might say that the heart of the CBD has moved from Robinson Road to Raffles Place to Marina Bay as new developments spring up over the years. That said, Tanjong Pagar, where Newport Residences is located, saw a significant rejuvenation with the completion of Guoco Tower, CapitaSky and Frasers Tower just a few years ago, with Guoco Tower currently laying claim as Singapore’s tallest building.
The area will be further enhanced with the completion of The Skywaters, an upcoming 63-storey mixed-use skyscraper on Shenton Way, which is expected to surpass Guoco Tower as the tallest building in Singapore. Coupled with its trendy shophouses along Tras Street and Duxton, Tanjong Pagar has now become a much more hip place.
But Newport Residences sits at a quieter part of the Tanjong Pagar neighbourhood.
It’s an estimated 8 minute walk to Tanjong Pagar MRT, with the future Prince Edward Road MRT on Circle Line CRL) as the closest MRT station to the development – the future station, which will be completed later this year, will be connected to Newport Plaza via a link bridge. Cantonment MRT, which is also on the CRL, will also be within walking distance.

What I appreciate most about Newport Residences’ location is that while it is close enough to the amenities offered within the Tanjong Pagar precinct, it also enjoys unblocked views of the sea and stands at the edge of the Greater Southern Waterfront transformation. This is an aspect that most other neighbouring condos cannot lay claim to.
In addition, Newport Residences is truly one of the rare freehold developments in the CBD, with most situated in the Spottiswoode area.
That said, buyers of Newport Residences should be aware that this development is situated next to the Ayer-Rajah Expressway (AYE), which is a major expressway. Noise would certainly be a concern for buyers who are also keen to enjoy the sea views. This is perhaps why CDL chose to build offices and serviced apartments from levels 2 to 22. Even as noise travels up to the residential units, the views are better at the very least.

Staying at Newport Residences means that you get easy access to great food options, and there are plenty of affordable food options at Tanjong Pagar Plaza Market & Food Centre. Alternatively, you could also check out the trendy restaurants in the Duxton Hill precinct or simply hop over to those at International Plaza, 100AM or Guoco Tower.
While one may not instinctively associate a CBD condo with nature, I would say that the options available at Newport Residences are decent, with Spottiswoode Park and Pearl’s Hill City Park a 15 to 20 minute walk away.
Finally, the lack of schools, especially primary schools, is an often cited reason why buyers would not consider CBD developments, but Newport Residences bucks the trend here. Cantonment Primary School is within a 1km radius, while CHIJ (Kellock) is within a 2km radius, according to OneMap. Thus, buyers with school-going children would have these options available.

Spaces for focused work and vibrant play
Newport Residences does not sit on a relatively huge site, which spans just under 55,000 sq ft, and it should not be expected to offer the same level of facilities as you would expect from a development sitting on a larger plot. Simply put, you should not expect to find a tennis court or a 50m lap pool in a development on a relatively compact site like this.
That said, Newport Residences is positioned as a luxury development and does cater to the lifestyle demands of the expected buyer profile.
This begins with the Residential Services Concierge found on the Roof Garden, which is named Newport Sky. The concierge is staffed with dedicated Residential Hosts who can assist with anything from “delivery acceptance to transport and housekeeping arrangements, restaurant reservations, towel service at the pool”, according to the developer.
Speaking of the pool, there’s one on the same floor as Newport Sky and this Sky Pool wraps around roughly half of the tower and is integrated with a Sky Spa Pool. The Pool Deck has the requisite deck chairs for those looking to chill on a cooler day. There are also a couple of other pool features around Newport Sky such as an Indoor Jet Pool and Steam Room.

The highlight of Newport Sky has got to be the Sky Club. Perched on the Roof Garden level, this function room will wow your guests many times over. CDL knows luxury well and you can tell from the renders that this will be a spacious room, with no expense spared in ensuring that you will feel privileged to be a resident.
Prefer the outdoors instead? The Sky Gourmet with BBQ Grill gives you another option where you can invite a private chef while you and your friends soak in the views. Besides Newport Sky on the Roof Garden, there are facilities on level 34 (Club Vista), level 1 and the 4 vertical gardens on levels 25, 29, 37 and 41.
Let’s move on to Club Vista. Here, you have another function room (Vista Gourmet) to host friends, albeit a slightly smaller one. Fret not, as there are also two Vista Lounges just outside Vista Gourmet, so those who may require some fresh air can also step out.
The Social Garden similarly provides the tranquility some residents may be looking for. Conversely, while many of us have returned to the workplace, some continue to work from home and there is a Vista Co-Work Lounge for those who find that useful.

Fitness buffs would be pleased to know that the Vista Gym is located on level 34, granting users the views as they stay motivated for the next workout.
The other four sky gardens are more private. For example, on level 25, there is the Play Garden, an amenity not often featured in residential CBD developments since most buyers don’t tend to be families.
On level 29, you have the Wellness Garden, with spaces for yoga and stargazing. Level 37 presents an outdoor fitness station for residents, although this appears to be more cursory given its size. Finally, on level 41, you have yet another co-working lounge, which I understand will be outdoors.

The main arrival point of the development is on Anson Road, and what greets you is the fully air conditioned Residential Lobby. For those driving, entry to the basement carpark will be along Bernam Street instead.
The project will only have a total of 131 carpark lots, enough for about 53% of all units if each has just one car. The car park lots include two dedicated lots for the Super Penthouse unit and three accessible lots. But with direct and sheltered pedestrian access to Prince Edward Road MRT, one could argue that having a car in such a location is surplus to requirements.
Reviewing the unit mix and layout design
| Unit Types | Unit Area (sqft) | No of units | |
| 1 Bedroom / + Study | 431 – 581 | 108 | 44% |
| 2 Bedroom | 646 – 753 | 24 | 10% |
| 2 Bedroom Premium / + Study | 689 – 926 | 63 | 26% |
| 3 Bedroom / Premium / + Study | 980 – 1,227 | 32 | 13% |
| 4 Bedroom Premium | 2,067 | 18 | 7% |
| Super Penthouse + Private Lift | 12,960 | 1 | – |
| TOTAL | 246 | ||
From the unit mix, most of the units at Newport Residences appear to be target investors and buyers with smaller household sizes, with one- and two-bedroom unit types accounting for about 80% of the total unit mix.
A noteworthy observation is that of the one- and two-bedroom unit types available, more than half (54%) are two-bedroom units with one bathroom and one-bedder units. In general, these unit types have not been as well received in recent years as the unit design is sometimes perceived to lack versatility.
With higher ABSD rates for locals and foreigners, most buyers tend to opt for larger unit sizes that may be suitable for either an affluent individual or a small family at the very least. This makes the two-bedroom units with two bath layouts as the more preferred choice.
To be clear, the unit mix of Newport Residences, with its relatively higher proportion of one- and two-bedroom unit types, echoes the layout choices we see in most of its neighbours such as One Bernam, 76 Shenton, and Eon Shenton.
I am certain that CDL is well aware of prevailing buyer preferences in the CBD and the one- and two-bedroom with one bath unit layouts still see keen buying interest, heightened by the freehold tenure of this project and its central location.
There are groups of singles and couples who may prefer keeping to a smaller budget or simply opting for a trophy home in the CBD over one further out in the RCR or OCR. That said, I wonder when we will see a new condo in the CBD that features two- to four-bedroom units, especially considering the government’s aim to transform the CBD into a more vibrant work-live-play precinct.
But turning back to Newport Residences, all units come with a 3.05m ceiling and marble floors for the common areas and engineered timber for bedrooms. These premium materials are standard across all bedroom types, including the one-bedroom plus study units.
Fittings and appliances from luxury brands such as V-Zug, Liebherr, Dornbract, and Haiku are also provided in each unit. This is a good reflection of the developer’s commitment to provide a holistic luxurious standard throughout the development – we go into more detail in our showflat review section below.
The only gripe I have about the unit mix in general is the lack of private lift access, which is a feature that is reserved for the sole Super Penthouse. This means that even buyers forking out more than $8 million for a four-bedroom Premium unit will have to contend with the common lifts.
One-bedroom and one-bedroom plus study units form the largest proportion (44%) of units at Newport Residences. They are generally regular shaped without any odd corners, with the exception of Type A5 (Stack 01) which has a slight curve in the Master Bedroom. That said, the curvature appears to be mild and is not expected to materially reduce the layout’s usable space.
They will all have an open concept kitchen. There are balconies in each of the 7 one-bedroom layouts, with more than half of them enjoying panoramic views of the sea given the direction they face.
That said, take note that a handful of layouts do not offer you the same units all the way up to the 44th floor. For example, Stacks 03 and 13 are only available from the 23rd to 33rd floors.

For the two-bedroom units, there are a variety of layouts available from one or two bathrooms to those with a study.
There is a showflat unit for Type BP2, which happens to be the only stack with a dumbbell layout while the other seven layouts have corridors leading to the bedrooms. As much as many new homeowners may prefer the former for its space efficiency, there are others who would opt for a more traditional layout for better segregation from communal spaces.
None of the layouts have kitchens with windows, while only the two-bedroom plus study layout has the Master Bathroom with a window for natural ventilation.
A couple of layouts have odd shapes and I personally find Type B3 the least ideal, with both bedrooms hit with curves that reduces the practicality of the layout. Type BPS2 is marginally better, with only the Master Bedroom and Master Bath having to contend with the odd shape. There is also a long corridor from the entrance of the unit for this layout, which appears to be an inefficient use of space in my opinion.

As for the three-bedroom options, there are three stacks available – a standard, one with a store room, and the last with a study.
As expected, the stack with the study (Type CPS1) is the largest three-bedroom unit at 1,227 sqft and in this case, it is also the most efficient with a pretty standard squarish layout, as well as the inclusion of a pair of balconies each attached to the living room and Master Bedroom.
As for the two other three-bedroom stacks, Type C1 comes with a unique dumbbell layout (which is a plus point in my opinion) but has a relatively long entryway and a slightly curved shaped Bedroom 3. The last option available (Type CP1) has an even longer entryway (plenty of privacy, but perhaps not the best use of space for a 1,206 sq ft unit) and has its aircon ledge beside the Master Bedroom, which is not the most ideal design choice.

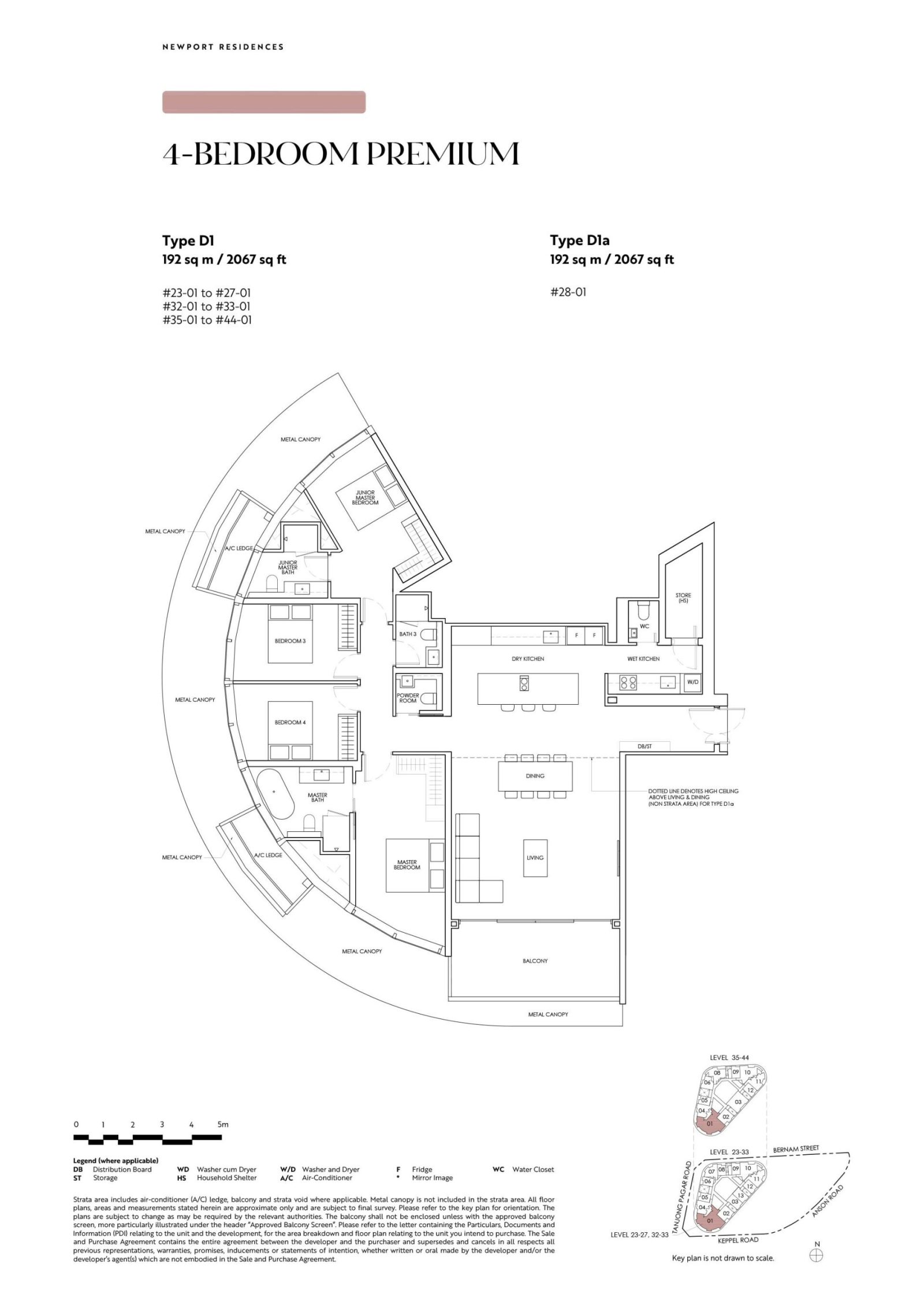
The sole four-bedroom premium layout is one of the units showcased at the sales gallery and its stack stands at the corner of the residential tower, boasting sweeping views of the sea and windows in two of its bathrooms. That said, many sections of the layout are curved but I’d argue that because of the sizable living space available, what may be perceived as “unusable” space may be enhanced with some creative interior design.
With that, let’s move on to an in-depth look at the two showflat units.
2 Bedroom Premium Showflat – Type BP2 (710 sqft)

As mentioned above, this is the only two-bedroom unit with a dumbbell layout, a layout which is typical for most two-bedroom units in recent new projects.
The size of this unit sits snugly between the smallest and largest ones available. In general, with a higher than average ceiling height of 3.05m, the unit appears to be more spacious than it looks and I do like that you have a space carved out for the L-shaped kitchen upon entering the unit.
While there are no windows, this layout still gives you the option of somewhat enclosing the kitchen to an extent. Although countertop space is limited, one could argue that daily cooking may not be a priority for owners that pick this unit anyway, given the accessibility to nearby dining options.

Branded appliances are provided such as a V-Zug induction hob, oven and cooker hood. The built-in cabinets feel particularly premium as the developers have them in a glass finish, a simple and elegant touch to elevate the experience. If you were wondering where the washer cum dryer could be, it’s been neatly tucked away by the end of the kitchen, with V-Zug being the brand of choice here.
These high end European (Swiss and French) brands highlight that CDL spared no expense in their choice of appliances. One thing to note is that given the size of the unit, this kitchen will not be the most spacious around, but is generally sufficient for the expected number of occupants.
The dedicated dining area has been fitted to showcase a table for four, although you may notice that it is quite a narrow table as the chairs would either infringe access to the bedroom or the pantry if it was to be any wider. If you do wish to host more friends, an extendable table for six or eight could be an option, although this would be in the way of the entrance.
The developers will also be providing an open pantry area beside the integrated fridge, which would be a perfect spot for your coffee machine, wine glasses and a wine chiller, depending on the time of the day. While it reduces space for the dining table, I would say that it’s a thoughtful move to make the home a more liveable one.

The living room comes with a Haiku fan as part of CDL’s goal of achieving the much vaunted Green Mark Platinum status. These fans command a premium and having used them in my own home, it’s certainly a brand I would swear by so it’s great that CDL is providing one as standard for every unit.
This is also a pretty comfortable space, with the couch fitting up to 3 people. There’s a commendable distance of 3m from the couch to the TV, so you get some room to place a compact coffee table and TV console here.
Beside the living room is the 55 sq ft balcony, which is size-appropriate for this two-bedroom unit. You have the flexibility of having a coffee table here for a morning sip, or simply try your hand at growing some plants. Always great to get some outdoor space when you have a compact unit like this!

Bedroom 2, which is the common bedroom, spans 111 sqft which I would describe as being slightly larger than average. In fact, I expect the Master Bedrooms in the one-bedroom units to be somewhere around this size as well.
Having a Queen size bed here would pose no issues, although a Single may be more appropriate if you require a study table as well. As the aircon ledge is located adjacent to this bedroom, do note that you will not be getting full length windows here.

Bathroom 2, which is an average size of about 44 sq ft, does not come with windows and is located beside Bedroom 2. It doesn’t have direct access to Bedroom 2, presumably due to the size of the bathroom but is convenient enough for most people.
It comes tiled in a porcelain, marble-like finish and certainly feels luxurious. To complement that “feel”, you will get a Dornbract basin mixer and handheld shower as well as a wall-mounted wc and basin from Duravit.
While it’s pretty common to find Duravit fittings in new launches, Dornbract ones are definitely rarer, with The Iveria at Kim Yam Road being the last time I recall it making an appearance. Ultra luxury developments such as Hana and The Ritz Carlton Residences in Orchard also have bathroom fittings from Dornbract.

The Master Bedroom comes in at 137 sq ft and will have room for a King size bed. Alternatively, if you require a dresser, a Queen may be the better choice. Its built-in wardrobe also has an additional accessories rack, which has become common among new launches these days.
The ensuite Master Bathroom is slightly larger than Bathroom 2 at 58 sq ft and is decked out in a darker palette. The main differences from Bathroom 2 would be the inclusion of the overhead rain shower and the choice of a matte black finish for the fittings from German maker Dornbract, giving the Master Bath a more luxurious touch. Both bathrooms do not have windows.
4 Bedroom Premium Showflat – Type D1 (2,067 sqft)

The four-bedroom premium showflat is the only four-bedder layout in the project. As expected from a premium unit, this stack gets panoramic views of the sea from practically every corner. Overall, it’s a generously sized unit.
That said, with a curved layout like this, you may not be able to fully utilise each inch of space, which is totally fine in my opinion since you already have a living area of over 2,000 sq ft.
I would imagine the typical buyer to be an affluent professional couple who work in or around the CBD (like SGH, NUH, Harbourfront) and with school going / adult children. They may be looking for a trophy home that comes with spectacular views and the promise of long-term capital appreciation from a property with freehold tenure.

With a budget of at least $8.28 million to spare, most buyers in this demographic tend to have plenty of options, both in the landed and non landed markets.
I feel it is surprising that buyers in this segment have not been accorded the privilege of a private lift. That said, having sea views from a vantage point in the CBD is one of those rare experiences that exudes luxury without having to explain much.

Entering the unit, there is a good amount of walkway where you could build more shoe cabinets than the ones already provisioned for by the developer. There’s a good chance that you would need them if you are a buyer in this category.
As with many other luxury apartments, there is a dedicated wet and dry kitchen.

There’s a lovely kitchen island, decked out in marble-like tile and built-in cabinets below. This is a fully functional setup, with a V-Zug induction hob and an undercounter wine chiller. The countertop space is also generous and perfect for hosting large groups of friends and family.
Across from the kitchen island is more countertop space, as well as a kitchen sink. It comes with beautiful top-hung glass cabinets fit for displaying your prized glasses.
The two integrated fridges by Liebherr will also be found here, finished with a glass texture that gives them an additional touch of luxury. There is also a separate built-in oven and steamer (both from V-Zug) found here. You could well say that the dry kitchen is already a fully fledged space.


As such, the wet kitchen is actually much smaller at 71 sqft. Nevertheless, there is yet another induction hob here from V-Zug, with an additional cooker hood by the same brand. Other appliances that can be found in the wet kitchen include a V-Zug dishwasher, washing machine and dryer.
A wc and store can be found by the end of the wet kitchen, which could double up as your dedicated helper’s quarters.
The more environmentally conscious buyers will also appreciate the Haiku ceiling fan in the living room, which comes standard for each unit. As the owner of such a fan myself, I’d say that it is in a class of its own – you could experience it for yourself with a unit at Newport Residences.

The dining and living room is where you will enjoy a generous 5.7m width. Coupled with the 3.05m ceiling, the space feels luxurious to say the least. The dining area can comfortably fit a party of eight with room for more.
The living room is expectedly spacious and is complemented by the 164 sq ft balcony which is so wide that CDL was even able to place an island counter to showcase this. Perfect for those wine evenings with friends after work, sipping while enjoying the panoramic views.
Guests can use the 29 sq ft powder room or 45 sq ft Bathroom 3, which are both similarly designed and without windows. The only difference is that the latter comes with an additional shower stall, with the handheld mixer from DornBracht. Fittings would otherwise be similar, with the sink mixer from DornBracht and the wall-mounted wc and basin from Duravit.
Of course, the ideal situation would be for guests to only use the powder room, leaving Bathroom 3 to be used by the occupants of Bedroom 3 and Bedroom 4.


Speaking of both bedrooms, they are 131 and 129 sq ft respectively, which is nearly identical in my opinion. They are adjacent to each other, and there is always an option to knock the walls down if you don’t require all four bedrooms.
Both rooms will have slightly curved window frames which are full length, although that “shortcoming” is well mitigated by the sea views that you will enjoy. One of the rooms has been designed as a kid’s room with a Queen sized bed, while the other has a Single bed instead, which leaves room for a study table.

Just a note on the bedroom layouts – all four bedrooms are placed along the same corridor, with the Junior Master Bedroom and Master Bedroom at opposite ends. As such, both actually have to deal with the most curved parts of the building but have generally still been able to achieve a desirable and practical outcome.


The Junior Master Bedroom is 188 sq ft which is pretty sizable. While the entrance is seemingly awkward, the layout of the bedroom itself is regular, save for the entrance to its ensuite bathroom. There are also four built-in wardrobe panels which makes it more generous than the typical bedrooms. Accommodating a King sized bed for this Junior Master Bedroom would not be an issue at all.
The ensuite Junior Master Bath is 66 sq ft and comes with a window for natural ventilation. Fittings from DornBracht come in a matte black finish, a privilege only accorded to the Master Baths and Junior Master Baths. DornBracht fittings include a rain and handheld shower, basin mixer and Duravit fittings such as the wall-hung wc and basin. The tile countertop is also that tad bit more flamboyant, a desire to achieve a marble-like effect.


The 216 sq ft Master Bedroom is undoubtedly meant to be fit for the King and Queen of the home. Regardless of which size of bed you actually go for (no pun intended), you should have a good amount of leftover space for an additional dresser.
The built-in wardrobes here are fantastic with its swing glass doors and really elevate the level of luxury in this unit.

The Master Bath is equally indulgent at 97 sq ft. It comes with a separate bathroom stall and bathtub, with matte black fittings such as the rain and handheld shower and basin mixer from DornBracht as well as the wall hung wc from Duravit. To cap it off, there’s also a window for natural ventilation here.
Writer’s commentary from Matthew, contributing writer
After I had the chance to tour the Newport Residences sales gallery and write my review of the project in this article, I think that Newport Residences is a rare freehold development that certainly deserves consideration if you are a well-heeled buyer on the market for a luxurious property.
New freehold developments are relatively uncommon in recent years, but much more so in the CBD. Plus, this development benefits from two major urban transformations.
Here are my reasons why this project has a strong proposition:
- It stands to benefit greatly from the rejuvenation anchored by the Greater Southern Waterfront (GSW).
This new waterfront precinct will be six times the size of Marina Bay when it is fully completed. Plans have already started with the launch of Build-To-Order (BTO) flats at the former Keppel Club Golf Course, and Newport Residences stands at the edge of this transformation. That said, I’m mindful that the full realisation of the GSW will be years in the making. - The perception of living in the CBD will change for the better.
The CBD Incentive Scheme is an ongoing effort by the government to rejuvenate and diversify the CBD into a more vibrant mixed-use precinct to live, work and play. We’re already seeing this gradually take shape, with both Newport Residences and Union Square Residences taking advantage of the incentives tagged to this scheme.
While the transformation of the CBD into this vision will take time, this is where a new freehold development comes into play. It can withstand the test of time and the concern of lease decay is immaterial.
My confidence also stems from Singapore’s track record of executing urban masterplans has been strong so far, and if you have faith that this streak will continue, then purchasing a freehold luxury development in the vicinity of two major urban transformations may potentially set you up for strong capital gains in the future.

- The indicative launch prices are fair for new luxury freehold residences in the CBD.
Prices at Newport Residences start from $3,012 psf and price comparisons should take into account that residential units here start from the 23rd floor. I would add that the freehold tenure and the location of the development already justify the indicative launch price, the quality of the unit design and features add to the equation.
For example, marble and engineered timber floors come standard at Newport Residences, as well as high-end brands such as V-Zug, Liebherr and DornBracht. These are brands you will not typically see in mass market developments, given the price of such high-quality appliances.
There are also reasons why buyers should approach this project carefully. These are the considerations I would keep in mind if I was thinking of buying a unit at Newport Residences.
- Recent new condos in the CBD haven’t really resonated among local buyers.
The sales progress of One Bernam and the price discounts the developer had to offer to help propel the sale of the last tranche of unsold units reminds us that CBD condos simply have not had that draw on most local buyers, no matter how attractive prices get.
Perhaps it’s because many who once considered them already have had a bad experience – a few CBD condo units on the resale market are now sitting on paper losses such as Marina One and One Shenton. TMW Maxwell’s weak showing and One Bernam’s significant discount to push sales may have further added to the perceived weaker sentiment among buyers. - Undesirable curved unit layouts can be a no-go for some buyers
Some of the unit layouts at Newport Residences are not my favourite with a few having to contend with the curved design of the tower. Layout designs like the four-bedroom can appear jarring on paper, but my experience touring the showflat is that the developer has been very mindful in positioning the rooms with curved edges.
For example, most of the bedrooms and living areas are mostly regularly shaped, perhaps with the odd angles here and there. Its in spaces like the bathrooms where the architectural curve of the building is most evident. But from what I’ve seen this is well managed and thoughtfully planned out.
My final thoughts in my review of Newport Residences is that purchasing a unit here would mean buying a piece of Singapore in the heart of the city where commerce across various industries converge. CDL has a good sense of the market pulse as one of Singapore’s largest listed property groups, and their brand should draw prospective buyers to come down and appreciate a rare product in the market that can be held in perpetuity.
Editor’s note
Thank you for reading our review of Newport Residences. When we cover a new condo launch, we’re mindful of our responsibility to provide factual and relevant coverage of the project that meaningfully contributes to your property buying decision.
Our New Launch Condo Reviews, like the one you have just read, is an unbiased and independently produced source of information that many of you use to help evaluate the merits (and demerits) of a new development. Previously, the ratings we allocated to new condos we reviewed were a helpful tool for uncertain buyers, as it gave them a snapshot appreciation of the complex variables that characterise each project.
But since we penned our first condo review nearly eight years ago, Singapore’s property market has evolved – development standards have improved, new technologies adopted, buyer’s preferences have shifted, and prevailing market dynamics have changed.
Stacked is committed to keep pace with these changes, and this begins with a timely update to the way we review and analyse new launch condos. We are working hard to roll this out as quickly as possible to offer you a more holistic appreciation of the new developments launching this year.
Sincerely,
Timothy Tay, editor-in-chief, Stacked
At Stacked, we like to look beyond the headlines and surface-level numbers, and focus on how things play out in the real world.
If you’d like to discuss how this applies to your own circumstances, you can reach out for a one-to-one consultation here.
And if you simply have a question or want to share a thought, feel free to write to us at stories@stackedhomes.com — we read every message.
Join our Telegram group for instant notifications
Join Now


0 Comments