All reviews on Stacked are editorially independent. Developers can advertise with us, but
cannot
pay
for,
edit, or preview our reviews.
New Launch Condo Reviews
Tengah Garden Residences Review: New 863-Unit Tengah Condo From $980,000 Near Hong Kah MRT
April 13, 2026 21 min read
| Project: | Tengah Garden Residences |
|---|---|
| District: | 24 |
| Address: | 11 – 29 Tengah Garden Avenue |
| Tenure: | 99-Years from 2025 |
| No. of Units: | 863 Units |
| Site Area: | ~274,028 sqft |
| Developer: | Hong Leong Holdings, Guocoland & CSC Land |
| TOP: | 2029 |
The launch of Tengah Garden Residences is the next step in Tengah’s ongoing transformation into Singapore’s largest new town since Sengkang and Punggol. The 863-unit project is on Tengah Garden Avenue and is the first private residential development to break ground in the master planned estate. It is jointly developed by Hong Leong Holdings, GuocoLand, and CSC Land.
Previously, the forested area was used as military training grounds and most people generally associated the area with Tengah Airbase, which is separated from the new town by Kranji Expressway (KJE).
The master plan to develop the Tengah New Town was introduced more than a decade ago, and more details of this ‘Forest Town’ were unveiled in the Draft Master Plan in 2025. In total, the town will house about 42,000 new homes, including 30,000 HDB flats and 12,000 private homes.
The first cluster of Build-To-Order (BTO) projects in Tengah were completed in 2023, and nearly half of the planned 30,000 public housing flats have been developed.
Adding to the housing stock are three executive condos (ECs) – Copen Grand by City Developments Ltd (CDL) and MCL Land launched in 2022, followed by Otto Place and Novo Place, both developed by Hoi Hup Realty and Sunway, and launched for sale in November 2024 and July 2025, respectively.
All three developments achieved strong initial launch sales, selling between 89% to 100% of units within a month of its launch. Some observers may also point to two more ECs in the vicinity – Lumina Grand and Altura – but I have excluded them as they are both within Bukit Batok rather than Tengah.
The EC sales figures are impressive when we consider that the first tranche of Tengah BTO flats have yet to complete their Minimum Occupancy Period (MOP), effectively ruling out a natural catchment of HDB upgraders in this area.
Thus, the strong take-up rates suggest a robust and sustained appetite for ECs, likely new private developments, in Tengah which bodes well for Tengah Garden Residences.
So many readers write in because they're unsure what to do next, and don't know who to trust.
If this sounds familiar, we offer structured 1-to-1 consultations where we walk through your finances, goals, and market options objectively.
No obligation. Just clarity.
Learn more here.
Affordability At Its Core
The indicative prices at Tengah Garden Residences start from:
- $980,000 ($2,025 psf) for a 484 sq ft one-bedroom unit
- $1.11 million ($1,779 psf) for a 624 sq ft two-bedroom unit
- $1.59 million ($1,993 psf) for a 797 sq ft three-bedroom unit
- $2.29 million ($2,025 psf) for a 1,130 sq ft four-bedroom unit
Given the average selling price of most new launch condos we’ve seen so far this year and in 2025, it is impressive that a new project offers units that are priced for less than $1,800 psf – especially given the average selling price recorded for the latest EC new launches this year.
For example, Otto Place, the latest EC in Tengah, achieved an average selling price of $1,700 psf during its launch in 2025, while Rivelle Tampines set an average selling price of $1,893 psf in March this year.
From my perspective, I reckon that the average selling price for Tengah Garden Residences during its initial launch weekend will likely be closer to $2,100 psf, given the track record of strong take up rates for new projects in the area and the steady demand for ECs there.
A Bet on Tengah’s Transformation
My take is that purchasing a unit at Tengah Garden Residences is akin to betting on the success of Tengah’s development plan, and the government’s master plan concept for this new town.
It has been more than 20 years since the government embarked on the development of a new town of this scale from the ground up, and Punggol was the last time a large new residential precinct was developed. Tengah is no small Master Plan, the neighbourhood spans over 700-hectares of land (the equivalent of 1,000 football fields) and will be roughly the size of Bishan when it is completed.
It will be the first HDB town to incorporate ‘smart technologies’ and a town-wide sustainable living environment from the start. The new town will feature a car-free town centre and a 100m wide, 5km long forest corridor – a landmark green corridor that positions it as Singapore’s first ‘Forest Town’.
Given the expected number of new BTO flats this area will yield, purchasing a unit at Tengah Garden Residences would offer owners a unique first mover advantage, ready to capitalise on the large pool of potential HDB upgraders in the future.
The development of a new town also offers URA and HDB with another opportunity to address some of the gripes that residents have faced in the some recently developed towns. For example, some Sengkang residents initially bemoaned the lack of hawker centres, the limited number of “good” schools, and availability of prominent public spaces.
It’s clear to me, based on the coverage of Tengah’s development plans, that the government is pulling out all the stops to ensure that Tengah residents will have more of such amenities readily available.
The area’s first supermarket (managed by Giant) and food court (managed by Koufu) at Plantation Plaza, the area’s first neighbourhood centre at Plantation Crescent, opened in 2024, a year after the first BTOs were completed.
Meanwhile, primary schools such as Pioneer Primary School (2026), Kranji Primary School (2028) and Anglo-Chinese School (ACS) (Primary) (2030) have already been planned for Tengah.
ACS Primary will arguably be the hottest pick among families with school-going children, especially after it will be a co-ed school following its relocation from its current Barker Road campus. United World College (UWC) is also set to move its Dover campus to Tengah in 2032.
Furthermore, those with healthcare needs will be pleased to know that Tengah Polyclinic has opened its doors this year, with Tengah General & Community Hospital due to open by the early 2030s. The latter will be situated across Tengah Garden Residences.
The development of new homes in Tengah, including condos like Tengah Garden Residences, will be particularly attractive to those working at some of the commercial hubs in the West, including the nearby Jurong Innovation District and Jurong Lake District.
The Jurong Lake District, which encompasses Jurong East and Lakeside, is planned to become Singapore’s largest mixed-use regional district after the Central Business District. The Jurong Innovation District will also feature the manufacturing and logistics focused Tengah Innovation District, which is envisioned to support 100,000 new jobs.

Convenience of Direct MRT Connectivity at Your Doorstep
A significant highlight at Tengah Garden Residences is that it is linked to Hong Kah MRT station on the Jurong Region Line (JRL), and the station will be part of the first 10 stations to be operational in 2028 – and this is expected to come a year before the condo is completed, barring potential delays.
When the entire JRL is completed by the mid-2030s, stations along the line will serve several neighbourhoods in the west, from Nanyang Crescent (NTU) and Jurong Pier to Pandan Reservoir and Choa Chu Kang. The key interchanges will be Boon Lay, Jurong East and Choa Chu Kang, which will be two stops from Hong Kah.
An important feature of the JRL that prospective buyers of Tengah Garden Residences should be aware of is that the tracks will be above ground unlike most new MRT lines. Based on what we could see depicted in the scale model, there are a few units that appear close to Hong Kah Station and the MRT tracks, and noise would certainly be a consideration for buyers here.
But the convenience of a direct link to an MRT station will be a key feature of the project that many buyers will be looking forward to.
For those driving, Tengah Garden Residences is served by major expressways and highways, such as the Pan-Island Expressway (PIE) and Kranji Expressway (KJE) via Bukit Batok Road and Brickland Road. As the new town eventually develops, there will also be more bus services and the construction of a new road interchange to connect Tengah town directly to the PIE by 2027.
Another highlight of the new condo that will be enjoyed by residents is the 30,000 sq ft retail podium on the ground floor, which means that residents won’t have to travel far for everyday necessities. The retail space will be curated and managed by the developers and is expected to feature a mix of retail lifestyle, and F&B options.
According to the developers, the tenant mix will be unveiled closer to the completion of Tengah Garden Residences.
However, don’t expect this to be a full-fledged shopping mall – for example, the nearby Le Quest Mall at Bukit Batok St 41 is over twice as large at around 65,000 sq ft, while West Mall at Bukit Batok Central is almost seven times larger at 205,000 sq ft.
Waterfront Living Inspired by Nature
If you make a trip to the actual development site of Tengah Garden Residences today, you will not see the waterbody – the planned Tengah Pond – depicted in the marketing materials for Tengah Garden Residences. But the water feature is earmarked in the latest Master Plan.
That’s because Tengah Pond will be a man-made pond that not only serves an aesthetic purpose, but also as a means of flood resilience. Perhaps I should acknowledge then, that calling Tengah Garden Residences waterfront living, is a misnomer.
Regardless, you will notice that the largest and most premium units at the condo are angled towards Tengah Pond, which makes them more desirable given the unblocked waterfront views.
Overall, the development comprises nine blocks of 16-storey apartments with a mix of one- to four-bedroom units. Designed by local architecture firm ADDP, the design concept of the condo takes inspiration from its planned proximity to Tengah Pond to create a wave-like facade to represent the flow of water, with the balconies having a wave line to soften the edges and complementing the full height picture glass frame.

The design of most of the condo’s facilities take on a similar form, with the pools and lawns having an irregular, wavy flow layout. For residents, there a side gate on the second floor that leads to Hong Kah station, as well as a side gate on Level 1 that leads residents to the commercial podium.
Vehicular access to Tengah Garden Residences will be via Tengah Garden Avenue. This appears to be an exclusive road for now, as plans for the neighbouring developments have yet to be confirmed.
While there are separate entrances for residents and those visiting the commercial units, both are along the same road and are in fact, one after the other. Congestion could be an issue during peak hours, which is not helped by the fact that there is only a single residential ingress for 863 units.
I would much prefer a two-lane ingress, one for visitors and delivery trucks and another for residents as you would now have to wait for the security checks to be completed before entering.

The development features 518 carpark lots across Level 1 and the Basement, including 17 EV lots. This accounts for 60% of units, which ties in with Tengah’s overall master planned approach as a car-lite town.
It remains to be seen if the planned public transport network for Tengah will be adequate to support the eventual demand for transit services, especially given the car-lite approach towards designing this town. Some buyers may find that they have little choice and purchase a car, so I hope that a 60% car park lot provision at the condo will be sufficient for residents.
Facilities for Family and Friends
While Tengah Garden Residences is billed as one of the most affordable new launch projects this year, the developers have packed a wide variety of amenities and facilities, as well as six sky terraces across six different blocks. Most of the resident facilities at Tengah Garden Residences are on level 2.
For blocks 13, 15 and 17, the sky terraces will be on level 10, while for blocks 11, 25 and 27, they will be on the top floor, level 16 instead.
While you will not find facilities on the sky deck such as a full-fledged gym such as the one at Promenade Peak or a 50m pool at Canninghill Piers, the ones at Tengah Garden Residences offering facilities such as a swing garden, outdoor reading deck, and a hammock deck.

On the other hand, the three sky terraces on level 16 each feature a function room and will have their own gourmet facilities and all of them should boast views of the Tengah Pond. Having a total of seven function rooms across a development of this size is impressive, especially since the three at the resident clubhouse can be amalgamated to accommodate larger parties.
There is also a function room in the dedicated Children’s Clubhouse, which also houses an outdoor pavilion with a BBQ pit. This comprises the Children’s Zone since the clubhouse is located beside the Children’s Playground and Children’s Aqua Fun Pool with water play equipment.
It is a meaningful design consideration to see a dedicated amenities zone at the condo dedicated to families and children, and I can already picture families spending a lot of time there together in the evenings. There is even an Art & Play Courtyard with a fun with chalks station. It is an apt choice to feature this many facilities catered to kids as I expect young couples with kids and young families will make up a large proportion of buyers.

Besides this children-centred Clubhouse, there is also Clubhouse 1 which does not have any function rooms. Instead, it houses several recreational rooms including a Games Room, Hobby Room and Reading Room. The two-storey clubhouse also features a Paddleball court on the roof.
Tengah Garden Residences also features a tennis court that doubles as a pickleball court. This offers a space to enjoy three popular racquet sports at this development. The condo also features several pools across the entire amenities deck.
As mentioned earlier in this review, the pools have an irregular shape. From my perspective, there is now an expectation among most condo owners to see a 50m lap pool in sizeable development s with more than 500 units – and I must admit I was slightly disappointed that there isn’t one here.

The best option at the project is an L-shaped pool that somewhat meanders around block 19, offering a lap pool portion and a Jetty Lounge and an Aqua Terrace with sunbeds. Some of the other pools available include the Aqua fitness courtyard, which has an Aqua Fitness Pool and Hydro Retreat Pool.

Reviewing the unit mix and layout design
Given the growing number of new BTO projects in Tengah, we can expect that the catchment of buyers will predominantly comprise couples and young families.
I have several friends who have moved into units or are receiving the keys to their new BTOs here. Most plan to start families and eventually upgrade to a condo, and they have shared with me that the number of bedrooms will be a priority when they move up the property ladder.
While Tengah Garden Residences has been marketed as having a mix of one- to four-bedroom units, there are only six one-bedroom units, which makes up less than 1% of the total units in the development.
In general, the popularity of one-bedroom units at new developments has declined in recent years. I am curious to understand why the developers even bothered with catering for 6 of such units.
But the main buying focus will be on the two, three and four-bedroom units available. Interestingly, there are more three-bedroom units than two-bedroom ones, which is generally rare given the more affordable price point for two-bedroom units.
However, I think that the three- and four-bedroom options would be popular among buyers in Tengah, as it provides an appealing exit option for those who intend to capitalise on price growth in the future.
These units would cater to families upgrading from their BTOs nearby and who may already be well settled in this part of Singapore. Its relatively more affordable price point compared to other developing residential areas in Singapore – such as Pinery Residences in Tampines West, which has an average psf of $2,550 – may keep the catchment of buyers within Tengah’s resale market.

All units come with a 2.8m ceiling height, which is typical among new launch projects. The developers have gone with large format porcelain tiles for the common area floors and vinyl for the bedrooms. These are expected choices given Tengah Garden Residences’ mass market position, although extra points should be given for picking large format tiles instead of the regular ones.
Fittings and appliances provided are from European brands such as Electrolux (gas hob, hood, oven), Smeg (fridge), Remer (mixer, rain shower, shower mixer) and American brand Kohler (wc and wash basin). Most of them are recognisable mainstream to premium brands. In a bid to achieve its BCA Green Mark Platinum certification, you will also be provided with a ceiling fan in your living room.
There are no private lifts serving any of the units at Tengah Garden Residences, and most buyers in this segment are unlikely to be too concerned about the absence of this feature.
Unit layout review by Hailey Khoo, real estate writer at Stacked
| Unit Type | Area (sq ft) | No. of Units | |
| 1-Bedroom | 484 – 517 | 6 | 0.7% |
| 2-Bedroom | 624 – 667 | 235 | 27.2% |
| 2-Bedroom + Study | 753 | 102 | 11.8% |
| 3-Bedroom | 797 – 829 | 96 | 11.1% |
| 3-Bedroom + Store | 904 | 88 | 10.2% |
| 3-Bedroom + Yard | 969 – 1033 | 163 | 18.9% |
| 4-Bedroom + Yard (2 baths) | 1130 – 1141 | 88 | 10.2% |
| 4-Bedroom + Yard (3 baths) | 1249 – 1259 | 85 | 9.9% |
| Total | 863 | ||
The unit mix at Tengah Garden Residences reflects the buyer profile the developers expect in a town that is still taking shape. The first batch of HDB flats in Tengah will not reach their Minimum Occupation Period (MOP) until 2028, which means the pool of upgraders within the town itself hasn’t materialised yet.
So far, the likely catchment of buyers are those who live in the surrounding western towns of Bukit Batok, Bukit Panjang, and Jurong, as well as those who see value in getting into a new township early, before the infrastructure, amenities, and transport links are fully in place. The project leans heavily on three-bedroom and four-bedroom homes, which make up 40% and 20% of the 863 units, respectively.
What stands out about the unit mix is the variety of layouts available. The developers have structured the variety of unit types across three configurations: compact, standard, and premium. A buyer shopping for a unit is not simply choosing between a smaller or larger version of the same floor plan. In general, they are choosing between configurations that come with different features at different price points.
The three-bedroom range illustrates this most clearly. Compact units come without a store in the kitchen, standard units include a store, and premium units come with a yard, household shelter, and water closet (WC) in the kitchen area.
A buyer choosing between a 797 sq ft compact three-bedroom unit and a 1,033 sq ft premium three-bedroom with a yard is not just buying more space; based on the layouts, they are buying a different set of features that change how the living areas and spaces are utilised.
The developers described this variety as a deliberate decision to cater to the range of buyers they expect in Tengah, from young professionals to families looking for something closer to what they are used to in a larger HDB flat.
All units come with a built-in smart home system, which includes a smart gateway, digital lockset, and smart air conditioning control for the living and dining area and master bedroom. The system runs on Z-Wave technology, which means owners can expand it over time with additional devices such as smart lighting, security cameras, and motorised curtains.
With that, here is a closer look at the three showflat units and one of the other three-bedroom layout options.
Two-Bedroom + Study Showflat – Type (2)d (753 sq ft)

This is the largest two-bedroom layout in the project and one of the showflat units. At 753 sq ft, it features a dumbbell configuration, which means that the master bedroom sits at one end of the unit, the second bedroom and study at the other, with the living and dining zone in between. The two bedrooms do not share a wall, which may be a good option for couples who keep different schedules or housemates who want some acoustic separation.
As you enter, the kitchen sits immediately to one side, keeping the cooking area contained and away from the living spaces. Moving further in, the living and dining area leads to an attached balcony. The dining area can comfortably fit a four-seater table.

On one side of the unit, is Bedroom 2, a common bathroom, and the study. The study comes with its own air-conditioning unit and can be fully enclosed, giving you the option to use it as a proper third room for a workspace, a hobby room, or just extra storage.
Bedroom 2 can accommodate a single or super single bed with space for a study table, or a queen bed if furniture is kept minimal. Bathroom 2 is connected to both rooms and serves guests from the common area.

At the other end of the unit is the master bedroom, which fits a queen bed with space to accommodate bedside tables. The master bathroom is ensuite. Built-in wardrobes are provided for both bedrooms.
There is no yard or household shelter, so storage will need to be managed through built-in carpentry.
There are 102 units of Type (2)d in the development (98 standard and 4 PES), making it the most common of the four layouts covered here.
Three-Bedroom Compact – Type (3)a (797 sq ft)

Type (3)a is not a showflat unit, but it is worth examining as an appealing the entry price point into the three-bedroom range. At 797 sq ft, it is only 44 sq ft larger than the 2-Bedroom + Study we saw above, with that extra space going into the third bedroom rather than the common areas. The kitchen, living, and dining areas will feel similar in scale to the two-bedder.
As you move through the unit, the kitchen and common areas flow in a configuration that will feel familiar from the two-bedder. The dining area comfortably takes a four-seater table, though an extendable table is a practical consideration for households that expect to host.
Moving to the bedrooms, this is where the additional square footage starts to get felt. The third bedroom is the point of interest in this layout: for a young family, it gives a child their own room; for a couple, it means a dedicated guest room or home office without having to convert the living room whenever there are visitors.
The common bedrooms will be on the snug side, and a queen bed is possible, but leaves limited walkway space, and a single or super single bed is the more practical choice if the room also needs to double as a workspace. One common bathroom is shared among the occupants of Bedroom 2 and 3 as well as guests, with the ensuite master bedroom.
There is no yard, household shelter, or store. Buyers upgrading from an HDB flat who might be used to having utility storage will feel that absence, and built-in carpentry will need to do the heavy lifting.
There are only 15 units of this configuration in the development (14 standard and 1 PES), the fewest of the four layouts reviewed here.
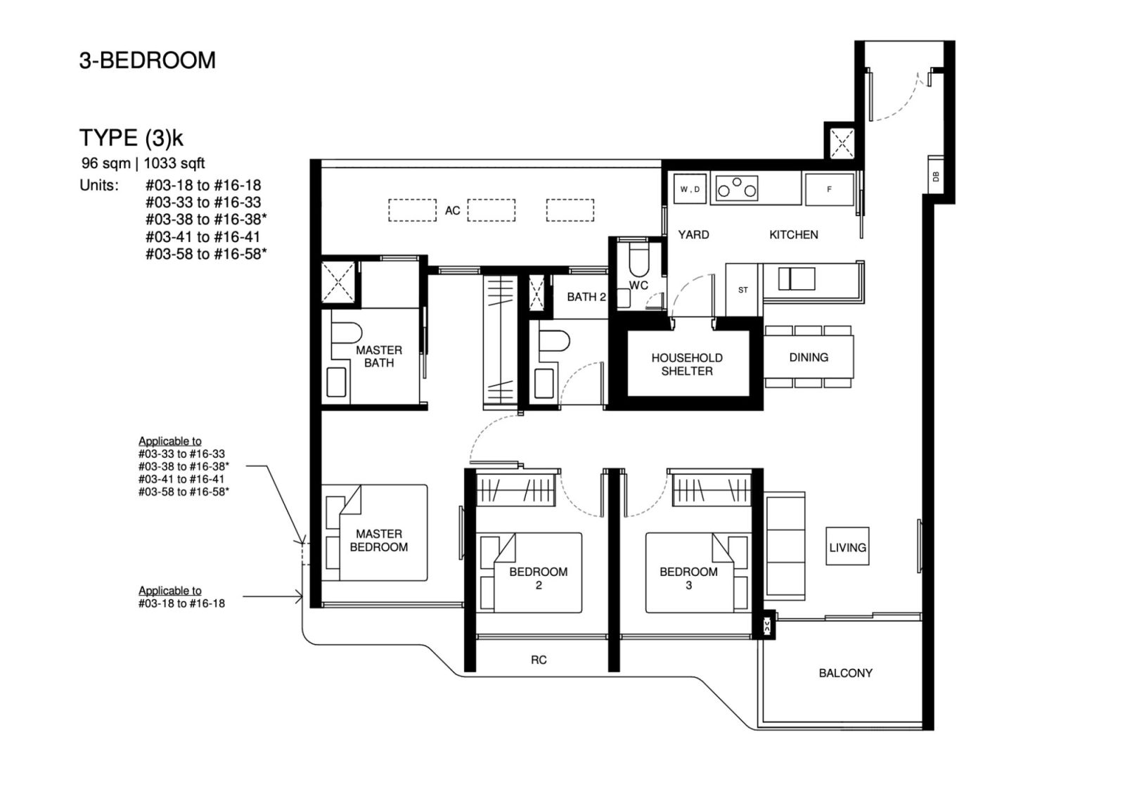
Three-Bedroom + Yard Showflat – Type (3)k (1,033 sq ft)

This is the largest three-bedroom layout in the development and one of the showflat units. At 1,033 sq ft, this unit sits within the premium options available, with the inclusion of a yard, a household shelter, and a WC within the kitchen zone, none of these are present in the compact or standard three-bedroom layouts.
As you enter, the unit opens onto a corridor that leads toward the living area. The hallway is long enough that the walls on either side offer a good run of space for carpentry: shoe cabinets, a console, or display shelves are all practical options before you reach the main living zones.

The kitchen is enclosed, which is a configuration most Singapore households prefer for heavy cooking, as it keeps the oil, smoke, and heat contained rather than letting them seep into the living area. The wet kitchen runs in a galley layout, with a gas hob, built-in oven, and side-by-side fridge. The Electrolux washer and dryer are provided and sit in the yard, which is directly accessible from the kitchen.
There is the utility area that separates the premium configuration from the compact and standard layouts: a yard for laundry and drying, a household shelter adjacent to the kitchen for storeroom use, and a WC that keeps the main bathrooms free during busy mornings or doubles up as the helper’s dedicated bathroom.

Beyond the kitchen is the living and dining area. The living area can accommodate a proper L-shaped sofa setup with a coffee table, and the dining area comfortably fits a six-seater table, a setup that most families hosting relatives for Chinese New Year or weekend dinners will find adequate. The balcony extends from the living area, with enough depth for a couple of outdoor chairs.
Moving on to the bedrooms, the two common bedrooms each measure around 86 sq ft based on the floor plan. At that size, a queen bed is possible but leaves limited walkway space, and a single or super single is the more practical choice if the room also needs to function as a workspace. Both rooms have full-height windows. Bathroom 2 serves both common bedrooms and guests.

The master bedroom is where the premium-tier positioning is most apparent. At 237 sq ft including the master bath, it is generous for a three-bedroom unit. Type (3)k includes a walk-through wardrobe with floor-to-ceiling built-ins, sufficient space for a king-sized bed with bedside tables, and the option of a standalone dresser or vanity.
Most four- and five-room HDB flats do not have room for a combination of all three of these fixtures, and upgraders who have been working around wardrobe and dressing constraints tend to notice the difference. The master bathroom features a glass shower enclosure and a mirrored cabinet with integrated storage.
There are 75 units of Type (3)k in the development (70 standard and 5 PES), giving buyers a reasonable spread of stacks and floors to choose from.
Four-Bedroom + Yard Showflat – Type (4)e (1,259 sq ft)

The four-bedroom showflat is the largest of the unit layouts reviewed here. It carries the same yard, household shelter, and WC provisions as Type (3)k, with an additional fourth bedroom and third bathroom.
As you enter, the kitchen zone sits in the same configuration as the three-bedroom layout: enclosed wet kitchen, yard, household shelter, and WC, but with a slightly larger kitchen and yard space of 129 sq ft. The wet kitchen has a longer counter run than the three-bedroom, giving more practical workspace for a household that cooks daily. The stacked Electrolux washer and dryer sit in the yard, directly accessible from the kitchen.

Moving to the living and dining area, the step up from the three-bedroom is most clearly felt here. At 388 sq ft compared to the three-bedroom’s 344 sq ft, the additional space is large enough for both sides of the room to be enjoyed.
The showflat demonstrates this with an eight-seater table and a full L-shaped sofa coexisting without the room feeling crowded, something the three-bedroom’s proportions cannot quite accommodate simultaneously. The balcony extends from the living room, with room for a small outdoor setup.
The bedroom arrangement is where this layout sees its third bathroom, a feature not present in the standard four-bedders. Two of the common bedrooms share Bath 2 via Jack-and-Jill access, where each bedroom has its own door into the shared bathroom. Bath 3 serves the fourth bedroom and guests, and the master bathroom is ensuite.

Three out of four bedrooms have dedicated or near-dedicated bathroom access, which largely eliminates the bathroom congestion that a two-bath, four-bedroom layout typically creates during morning routines for families with school-going children or multiple generations sharing the home.
The common bedrooms each measure around 86 sq ft, consistent with the three-bedroom layouts. At that size, a queen bed works with careful furniture planning, while a single or super single is the more practical choice if the room also needs a study area. The fourth bedroom typically serves as a home office, guest room, or children’s room. There is no separate study in this layout.

The master bedroom, at 248 sq ft including the master bath, is the most spacious bedroom among all the layouts in the development. The showflat presents it with a king-sized bed with bedside tables on both sides and a vanity table, with room to move around all three, a combination that even larger HDB flats rarely accommodate.
The walk-in wardrobe is a larger dedicated space than the three-bedder, also with floor-to-ceiling built-ins and accessible from the master ensuite. The master bathroom similarly features a glass shower enclosure and a mirrored cabinet with a window for natural ventilation.
There are 27 units of this type in the development (26 standard and 1 PES). The single PES unit is worth noting for buyers who want ground-floor outdoor space as part of a four-bedroom home.
Final thoughts by Matthew, contributing writer for Stacked.
Purchasing a unit at Tengah Garden Residences is a bet on the outcome of the town’s ongoing development and realisation of the master plan, and exemplifies the confidence that you have in HDB’s ability to achieve the masterplan it has set out for Tengah town – a “forest town with homes surrounded by lush greenery and nature” with a 5km long forest corridor connected to the Western Water Catchment Area and Central Catchment Nature Reserve. There are also goals to achieve, such as a car-free Town Centre with abundant walking and cycling paths.
From a practical perspective, Tengah Garden Residences’ affordable pricing both in relative and absolute terms will enhance its attractiveness among buyers. When compared to other new launches in suburban locations, of the Outside Central Region (OCR), it is among the lowest in psf terms and its indicative price quantum for the popular two- and three-bedroom units compares favourably against the rest of the new launch market.
But make no mistake, the expected average price of above $2,000 psf remains untested territory for Tengah, as the past three new launches in the area have been limited to ECs. This will be the first private development and will set the benchmark price for future private homes in the area. Moreover, it will take time for development plans to fully bear fruit, and patience is required before Tengah’s master plan is complete.
That is perhaps the whole point about a first mover advantage. Comparisons to Punggol and Sengkang have been made and it is true that buyers who have bought their condo units during the early phase of the area’s development have typically benefitted from a significant price increase over time.
For buyers of Tengah Garden Residences, you can take comfort that while the transformation of Tengah is ongoing, your own convenience remains uncompromised. At the development, you have a direct link to Hong Kah MRT on the JRL and access to 30,000 sqft of retail space downstairs. In fact, your development could well be the pivotal “transformation” that the neighbouring BTOs have been looking forward to.
The past few new launches such as Pinery Residences, Rivelle Tampines, River Modern and even Newport Residences have seen red-hot sales over their respective sales launch weekends and my guess is that Tengah Garden Residences will not be left out of the party.
At Stacked, we like to look beyond the headlines and surface-level numbers, and focus on how things play out in the real world.
If you’d like to discuss how this applies to your own circumstances, you can reach out for a one-to-one consultation here.
And if you simply have a question or want to share a thought, feel free to write to us at stories@stackedhomes.com — we read every message.
Frequently asked questions
Where is Tengah Garden Residences located?
Tengah Garden Residences is located at 11 - 29 Tengah Garden Avenue in District 24.
What is the tenure of Tengah Garden Residences?
The tenure of Tengah Garden Residences is 99 years from 2025.
How many units are there in Tengah Garden Residences?
There are 863 units in Tengah Garden Residences.
What is the expected TOP date for Tengah Garden Residences?
The expected TOP date for Tengah Garden Residences is 2029.
What MRT station is connected to Tengah Garden Residences?
Tengah Garden Residences is linked to Hong Kah MRT station on the Jurong Region Line.
What amenities are available within Tengah Garden Residences?
The development features a retail podium, sky terraces with function rooms, a children’s clubhouse, water features, and various recreational facilities.
Join 16,000+ readers on Telegram — new launches, price movements, and our analysis as we publish them.
Subscribe on Telegram →


0 Comments