All reviews on Stacked are editorially independent. Developers can advertise with us, but
cannot
pay
for,
edit, or preview our reviews.
New Launch Condo Reviews
Narra Residences Review: A New Condo in Dairy Farm Priced Close To An EC From $1,930 PSF
January 22, 2026 20 min read
| Project: | Narra Residences |
|---|---|
| District: | 23 – Bukit Panjang |
| Address: | 50, 52, 54, 56, 58, 60, 62, 64 Dairy Farm Walk |
| Tenure: | 99-year Leasehold from 1 July 2025 |
| No. of Units: | 540 Units |
| Site Area: | ~235,526 sq ft |
| Developer: | Dairy Farm Walk JV Development Pte. Ltd. (JV by Santarli Realty, Apex Asia Development, Soon Li Heng Group, Kay Lim Realty) |
| TOP: | Q1 2030 |
The launch of Narra Residences, a 540-unit condominium on Dairy Farm Walk, marks the third new private residential project in the Dairy Farm area in just over six years. In that time, there were two other condo launches – the 460-unit mixed-use Dairy Farm Residences launched in November 2019, and the 386-unit Botany at Dairy Farm, which entered the market in March 2023.
The slate of new launch activity in recent years has helped shed the Dairy Farm area’s previous image as an ‘ulu’ enclave, which was characterised by the low-rise landed neighbourhood on Chestnut Drive and several undeveloped plots of open green space.
This was what greeted the initial buyers of Dairy Farm Residences, who were also sold on the vision of a new neighbourhood that had yet to take shape. This matters now because the buyers of Narra Residences are moving into a very different locale compared to the buyers six years ago.
The profile of the neighbourhood is finally taking shape, especially after the completion of Dairy Farm Mall in 2024. The retail development is part of Dairy Farm Residences. If you walk around the neighbourhood today, you’ll see many more residents going about their daily chores and activities.

If you haven’t visited in some time, it may be worth returning to see how the neighbourhood feels today (expect huge changes!) The growth of the neighbourhood is certainly a factor in the pricing strategy of Narra Residences, which is being developed by a consortium of developers led by Apex Asia and Santarli Realty.
Our Pricing Review of Narra Residences analyses and elaborates on the launch price of Narra Residences. But the indicative launch prices of the 99-year leasehold condo are competitive when marked against recent new Executive Condo (EC) prices.
This would have certainly caught the attention of hopeful buyers, since the public preview of Narra Residences over the Jan 17-18 weekend coincided with the launch of Coastal Cabana, an EC in Pasir Ris. On the face of it, both projects target families and buyers on a more price-sensitive budget.
So far, indicative prices at Narra Residences are:
- One-bedroom plus study unit of 517 sq ft: $998,000 ($1,930 psf)
- Two-bedroom units of 560 – 646 sq ft: $1.17 million ($2,089 psf)
- Three-bedroom units of 818 – 1,023 sq ft: $1.6 million (or $1,956 psf)
- Four-bedroom units of 1,152 sq ft: $2.4 million ($2,083 psf)
- Five-bedroom unit with a private lift of 1,658 sq ft: $3.8 million ($2,292 psf)
The cost of land is typically a significant consideration when developers set out their pricing strategy, and the site of Narra Residences was awarded to the developers after they put in the winning bid of $504.5 million (or $1,020 psf per plot ratio) in a government land tender that closed last January.
In contrast, the site of Dairy Farm Residences was awarded to United Engineers, whose winning bid was $368.8 million (830 psf ppr) back in 2018. The project would eventually launch for sale at an average price of $1,626 psf. Likewise, Sim Lian Group won the site at Botany at Dairy Farm after putting in the winning bid of $347 million ($980 psf ppr) in 2022. The project subsequently launched for sale at an average price of $2,070 psf.

In our review of Narra Residences, some compromises need to be considered. The project is not quite as close to an MRT station as some buyers would prefer, and the limited range of nearby amenities can be off-putting to buyers accustomed to more established neighbourhoods. But these concerns don’t seem to hinder sales at the two previous launches, which are both fully sold.
So in our review of Narra Residences, we’ll also ask, given these price points, who Narra Residences actually make sense for in today’s market? Let’s take a closer look at the project.
Wellness and Greenery as the Starting Point
The Dairy Farm area benefits from its proximity to protected forests like the Bukit Timah Nature Reserve and the Rail Corridor, which has an access point opposite CHIJ Our Lady Queen of Peace on Chestnut Drive.
The profile of the Dairy Farm neighbourhood is shaped by its proximity to nature and green spaces. For residents who value outdoor space, this is a lifestyle that’s hard to replicate elsewhere in Singapore. Morning walks, trail runs, or simply having greenery as your backdrop, not to mention the natural flora and fauna in the area.
At close to 236,000 sq ft, Narra Residences also sits on one of the largest condo plots in this area, and this comes through in the way the residential blocks, amenities, and landscape are laid out.

About 66% of the site is dedicated to landscaping, complemented by relatively generous building setbacks. The distance between Blocks 58 and 60 is about 33 metres, while the setback between Blocks 52 and 58 stretches to roughly 63 metres. The result is a development that feels noticeably more open than many denser, more urban projects.
The natural terrain is also sloping, and rather than levelling the site, the site design accommodates the natural contours, with blocks stepping up to heights of six, 13 and 16 storeys. As a result, air flow throughout the development is enhanced, and more stacks tend to overlook the nearby landed estates on Chestnut Drive.

Day-to-day Living in the Dairy Farm neighbourhood
Despite the strong nature-led setting, it is a small community, and it comes with a few caveats. Dairy Farm Mall might be the most convenient source of everyday amenities, covering essentials rather than variety, with offerings like FairPrice Finest and even an upcoming hawker centre. This suits buyers who prefer a relatively secluded neighbourhood, but those who enjoy café-hopping or retail convenience will likely find themselves driving out often.
The nearest MRT station is Hillview on the Downtown Line (DTL), which isn’t what most people might consider walking distance. This is very much a car-oriented locale. But on the plus side, Narra Residences offers a 1:1 parking provision for all 540 residential units, along with 17 electric vehicle (EV) parking lots.
A noteworthy inclusion that the developers are building is a new cul-de-sac that will exclusively serve residents of Narra Residences and a future new primary school, though this was part of the land tender conditions when they won the site. I can only imagine the traffic this cul-de-sac will have to serve in the future, especially during peak hours and the start and end of school.

On the topic of schools, there are several in the vicinity, such as Bukit Panjang Primary School and CHIJ Our Lady Queen of Peace, which are about 1km away. Other primary schools in the locale include Beacon Primary School and Zhenghua Primary School.
There are also several international schools and campuses like Perse School (Singapore), German European School Singapore (GESS) and St. Francis Methodist School. This proximity makes the area particularly appealing to expatriate families.
That said, a new primary school is planned next to the new condo. While details of the school haven’t been announced yet, it will likely make the neighbourhood more convenient and appealing for families, but it also means higher footfall and activity during school hours.
Architecture shaped by its surroundings
Architecturally, Narra Residences takes its design cues from its lush surroundings. Designed by architectural firm P&T (the same firm behind projects like ELTA, Faber Residences and Pinetree Hill), the development draws inspiration from three natural elements found around the site: the former granite quarry in Dairy Farm Nature Park, the forests that make up Bukit Timah Nature Reserve, and Upper Peirce Reservoir.
The architecture isn’t trying to make a statement, and the design of the façade complements the surrounding natural environment. Where the design shows up is in the smaller decisions, such as the height of the blocks, the distance between them, and how greenery is allowed to sit right up against the buildings. So, in a way, the architecture takes a step back and lets the landscape do most of the talking.

In terms of facilities, Narra Residences offers a fairly complete line-up. There’s a tennis court, a 50-metre lap pool, a fully equipped gym and three function rooms. The focus on family-friendly amenities comes through in the children-oriented spaces. This includes a kids’ pool, a family canyon pool, a Family Pavilion and a 5D immersive sensory playroom.
We’ve also noticed that some new projects over the past year or so have tried to differentiate their lineup of amenities with one or two standout facilities. At Narra Residences, this would be the golf simulator, an equipment typically seen in more high-end luxury developments.
What I like is that the developers didn’t try to cram every possible amenity into the site. There’s enough here to give residents a complete condo lifestyle, but it doesn’t tip into that slightly exhausting “we-have-everything just for the sake” kind of provision.
There are also four strata commercial units within the development. The developer hasn’t shared the exact plans in terms of how it will curate the retail offering, but we hope it will add to the limited range available in this area.

Narra Residences’ Unit Mix and Layout Design
| Unit Types | Unit Area (sq ft) | No. of units | |
| 1-bedroom with Study | 517 | 3 | 0.6% |
| 2-Bedroom Compact | 560 | 30 | 49.1% |
| 2-Bedroom Premium | 646 | 58 | |
| 2-Bedroom with Homeshelter | 689 / 700 | 66 | |
| 2-Bedroom with Homeshelter and Study | 721 | 24 | |
| 2-Bedroom with Study | 721 | 87 | |
| 3-Bedroom Compact | 818 | 28 | 34.3% |
| 3-Bedroom Flexi | 872 | 31 | |
| 3-Bedroom Premium | 990 / 1,001 / 1,012 / 1,023 | 101 | |
| 3-Bedroom Premium with Study | 1,152 / 1,173 | 25 | |
| 4-Bedroom Compact | 1,152 | 35 | 11% |
| 4-Bedroom Premium | 1,378 | 26 | |
| 5-Bedroom with Private Lift | 1,658 / 1,679 | 26 | 5% |
Narra Residences is the first new private residential project in District 23 that has been developed under the revised GFA harmonisation framework. You can read a more detailed explanation in our article here.
In simple terms, air-conditioning ledges are no longer counted within the unit size. As a result, units appear smaller on paper, but the layouts tend to be more efficient with less space lost to non-usable areas.
At Narra Residences, two-bedroom unit types make up the largest proportion of the available units, accounting for 49.1% of the unit mix.
For a development mainly positioned to the needs of families, this may appear counterintuitive. But this choice responds to a broad shift in buying preferences, where young and more price-sensitive families are increasingly willing to consider well-planned two-bedroom layouts, particularly those with a study.

At the showflat, one of the units on display is the two-bedroom plus study layout, which makes up the bulk of the two-bedroom mix. It’s a fairly standard configuration, but one with broad appeal. The layout is a dumbbell arrangement with two bathrooms, and the study is large enough to fit a single bed and comes with its own air-conditioning.
The kitchen does not have a window for natural ventilation, although it can be enclosed if needed. The common bedroom fits a queen-sized bed, while the master bedroom can accommodate a king-sized bed. One thing to note is that the common bedroom does not have a full-height window, since the air-con ledge is also positioned there.

For a small family, this is a straightforward and liveable option. The balcony is kept relatively compact, which keeps the liveable space functional and efficient.
All the units in the development have ceiling heights of 2.8 metres. Common areas are finished with large-format porcelain tiles, while bedrooms come with vinyl flooring. This is a common specification for new projects in the suburbs, or Outside Central Region (OCR). Kitchen appliances are from Smeg and bathroom fittings from Duravit.

On the other hand, three-bedroom units make up the second largest proportion of units in the mix. These come in compact, flexi and premium configurations, offering some variation depending on space requirements. This is also where the project starts to feel more clearly geared towards families and owner-occupiers.
Larger-sized units are more limited. Four-bedroom units account for about 11% of the total unit mix, while there are only 26 (5%) five-bedroom units.
There are only 3 one-bedroom plus study units in the entire development. This reflects buying preferences in this area, which doesn’t feature much investor demand. But proximity to several international schools may still create some niche interest.
We would also point out the overlap in unit sizes. The three-bedroom plus study and four-bedroom compact units are both sized at 1,152 sq ft. In most cases, the additional enclosed bedroom in the four-bedroom layout is likely to be more practical than a study.
Most stacks are oriented north–south, which helps them avoid the worst of the afternoon sun. Some units also look out towards the nearby landed homes.
There are three unit types available for viewing at the showflat. Let’s focus on the three-bedroom premium unit and the five-bedroom unit type in this review.
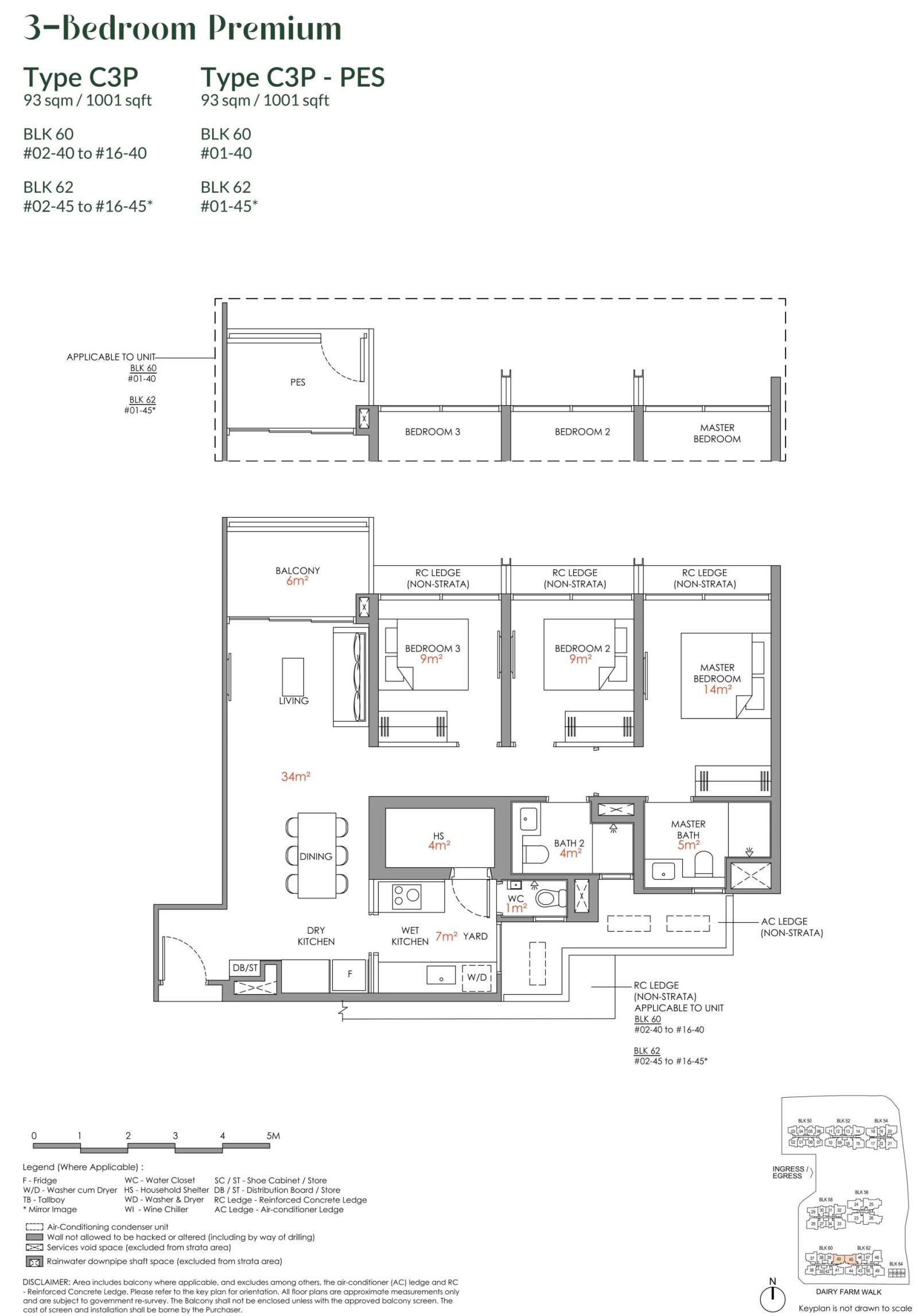
3 Bedroom Premium Showflat – Type C3P (1,001 SQFT)

There are eight different three-bedroom configurations here. That’s already more than what we usually see, and it suggests the buyer profile this project is targeting.
For the three-bedroom unit types, the unit layout design is fairly similar. You get a standard hallway layout with the bedrooms kept away from the living area. All the kitchens are enclosed and have windows.
The showflat on display is the 1,001 sq ft three-bedroom premium unit. It comes with a household shelter and toilet, an enclosed kitchen, three bedrooms and two bathrooms. Nothing out of the ordinary, but it’s a familiar setup that appeals to many homeowners.

The finishes are typical of new condo units we see on the market at this price point – porcelain tiles in the living areas, vinyl flooring in the bedrooms, and ceiling heights of about 2.8m. Overall, this is a very typical three-bedroom layout that is recognisable across different new launch projects on the market today. It’s efficient, mostly regular in shape, and easy to furnish.
From the main entrance, the unit opens into a small foyer, and there’s enough space here for shoes, storage, or a small console, which helps keep the rest of the home feeling a bit more organised.

From there, the kitchen is split into a dry and wet zone. That said, the “dry kitchen” here is really just an extension of cabinetry and counter space, with a niche for the freestanding Smeg fridge. There’s no cooking zone, so it functions more as prep space than a true dry kitchen. It feels like a way to keep the wet kitchen enclosed and compact, while still carving out extra counter space. If you host occasionally, this additional countertop area is useful.
The wet kitchen measures about 75.3 sq ft, which is on the compact side for a three-bedroom unit. It’s a straightforward, no-frills setup. One side is used for prep, washing and built-in appliances, while the opposite is the cooking zone. Appliances here, including the gas hob with hood, built-in oven and washer-dryer, are from Smeg. Sinks and taps are from Franke, a familiar provision at this price point.

If you cook regularly, the kitchen may feel a little tight. That said, for households that cook occasionally, the smaller overall size makes sense since you’re not paying for space you won’t use. The window is a considerate addition to keep the space naturally ventilated.
The yard is integrated into the kitchen rather than being a separate space. It’s a utility corner by the window, and for a three-bedroom premium unit, some buyers may find this space small. The household shelter doubles as either storage or a helper’s room with the installation of a Murphy bed. The adjacent toilet is compact, but it comes with a window for natural ventilation, which is a practical plus.
Taken together, the foyer, dry kitchen, living and dining areas add up to about 365.8 sq ft, which is fairly typical for a three-bedder in most new launches today.

At the show unit, the living area is furnished with a four-seater sofa and a small coffee table. There’s no TV console included in the interior design, so buyers should factor that in their space planning. The living room also leads out to a 64.5 sq ft balcony. The length feels practical and not oversized. This stack faces a neighbouring block and overlooks the condo’s landscaped areas.
The common bathroom serves guests and two common bedrooms. At about 43 sq ft it is compact, though this size has become fairly typical. While small, it does come with a window for natural ventilation. The sanitary fittings here are from Duravit.
Both common bedrooms measure about 96.84 sq ft and come with full-height windows, so no one is fighting over the “better room” in this case. At this size, each room can comfortably fit a queen-sized bed next to the built-in wardrobes.

The master bedroom measures about 150 sq ft and comes with full-height windows and a two-panel built-in wardrobe. Storage may feel a little tight for two, but this is a common design for most new three-bedroom units. The master bathroom is slightly larger than the common bathroom, and it also comes with a window for natural ventilation. Sanitary fittings are also from Duravit.
Overall, this is a familiar layout, and that’s not a bad thing. It’s the layout we see repeated because it generally accommodates the lifestyle needs of most households.
5 Bedroom with Private Lift Showflat – Type E1 (1,658 SQFT)

Having five-bedders in this development makes sense given the profile of families in this area and upgraders from the nearby landed homes. At the same time, it’s a manageable portion of the unit mix that is a good balance with the four-bedroom units.
There are just two different five-bedroom layout types, and the showflat uses the smaller, 1,658 sq ft unit. Overall, both layouts are similar. You get a private lift lobby, five bedrooms (two with ensuite bathrooms), a common bathroom, a household shelter, and a dry and wet kitchen setup.

You can expect porcelain tiles in the living areas, vinyl flooring in the bedrooms, and ceiling heights of about 2.8m. The layout itself is straightforward. Rooms are regular in shape, circulation is clear, and it’s easy to picture how the space would be furnished.
The private lift opens into a small private landing within the unit. It adds a layer of privacy and gives a clearer sense of arrival before you enter the main living space. Once inside, the living and dining areas stand out for their width.

Together with the dry kitchen, this open area measures about 452 sq ft. The space is flexible enough for owners to configure it according to their needs, whether that means giving more room to the dining area, carving out a larger living space, or balancing both.
The wide frontage of the balcony, at around 5 metres, also makes it feel more spacious. It makes the living area feel more open and gives it a better sense of proportion, especially when combined with the balcony.
The unit also comes with a dry kitchen. The cabinetry is well-sized with a built-in Smeg fridge and a Smeg wine chiller. In terms of provisions, this is where the larger unit does feel like a step up from the smaller layouts.

The wet kitchen and yard measure about 17 sq m in total. For a unit of this size, the space feels well-proportioned. The yard accommodates the washer and dryer, both from Smeg, and also houses the service entrance. Also located here is the household shelter and a nearby toilet. Together, they add flexibility to the layout — whether as additional storage or as a workable resting area for households with live-in help.
The wet kitchen is laid out in an L-shape and comes with a window for natural ventilation, allowing the space to be fully enclosed if needed. In addition to the integrated fridge in the dry kitchen, there’s a second freestanding Smeg fridge here. Other appliances include a built-in gas hob with hood and a built-in steam oven, both from Smeg. I reckon the extra fridge is a welcome addition for a unit at this size.
Common Bathroom 2 serves guests as well as the three common bedrooms. It’s on the compact side and does not come with a window, so ventilation here is fully mechanical. Fittings are consistent with the rest of the unit, with sanitaryware from Duravit.

All three common bedrooms are identical, each measuring about 96.8 sq ft. That’s a fairly typical size among new projects today. Plus, all of them come with full-height windows, so there isn’t a clear “better” room among the three.
With the standard built-in wardrobes, each bedroom can comfortably fit a queen-sized bed. One thing to note is that the walls here are structural and cannot be hacked, which limits flexibility for those thinking of reconfiguring the space.
Next is the junior master bedroom, which measures about 107.6 sq ft, making it slightly larger than the common bedrooms. The trade-off is that the windows are smaller, so the room may feel a bit darker compared to the others. That said, it can still accommodate a queen-sized bed alongside the built-in two-panel wardrobe.
As is typical for a junior master, the bedroom comes with an ensuite bathroom. The bathroom measures about 4 sq m and is similar in size to the common bathrooms. It does not have a window and relies on mechanical ventilation.


Finally, the master bedroom measures about 215.2 sq ft when you include the small private balcony. That’s more than twice the size of the common bedrooms. Storage is noticeably upgraded here, with an eight-panel wardrobe, including a glass-panelled section that gives the room a slightly more premium feel compared to the other bedrooms.
The living area can comfortably fit a king-sized bed. The attached private balcony piqued my interest, though given the slim range of outward-facing views, some buyers may not prefer it. But others may enjoy having the extra outdoor area to themselves.
Personally, I would have traded the balcony for a slightly larger bathroom, but this ultimately comes down to how much value one places on having a private outdoor space.

Writer’s Commentary from Cheryl, contributing writer
Touring Narra Residences felt like a familiar experience – from a similar narrative that was also shared at The Sen, The Botany at Dairy Farm and even Dairy Farm Residences. They all leaned heavily into the unique character of the neighbourhood and exclusive lifestyle of its natural surroundings.
This also means that, to me, Narra Residences might not be a development that pleases everyone and would likely appeal to folks who prefer a more laid-back, chill and nature-inspired environment. They also do not mind the area’s quirks of less connectivity and limited variety of nearby amenities.
Another group who might be drawn to this project are price-sensitive buyers who are on the lookout for a new private home at an affordable and competitive price. It’s fair to say that those considering Dairy Farm are concerned about the value proposition of the condo.

Personally, I think that those who are considering buying a unit at Narra Residences, have a have a different risk appetite compared to the initial buyers of Dairy Farm Residences and Botany at Dairy Farm.
Back then, the area was relatively untested and relatively less developed. Today, they are completed, and the area is gradually strengthening into a more established residential neighbourhood. This gives buyers today more confidence in the long-term prospects of the developments here.
So, keeping this in mind, these are the considerations I would make if I were thinking of buying a unit at Narra Residences:
- Future sites upcoming in the area
One thing buyers should be aware of is that there’s still a fair amount of residential land around Dairy Farm that hasn’t been developed yet. A number of sites in the area are already zoned for residential use, so it’s clear this isn’t meant to remain low-density forever. At the same time, Narra Residences isn’t a first-mover project either, seeing that there are already completed condos and amenities in place.
The most immediate reference is the new GLS site along Dairy Farm Walk. It’s a larger plot than Narra Residences, with a plot ratio of 1.4, and the tender was only recently launched. The final bid will be known on 22 January 2026, and that outcome should give a better sense of how developers are pricing risk and demand in this part of Dairy Farm.
Nearby at Petir Road, there are also several vacant plots zoned for residential use, each with a higher plot ratio of 2.1. For now, the neighbourhood can feel quite underdeveloped, but these parcels are earmarked in the latest master plan.
So while parts of Dairy Farm still look undeveloped today, that’s largely by design. More homes will likely come in over time, and with that, a larger residential population. Whether that’s a positive or a concern depends on perspective. More supply also tends to bring more amenities, but it does mean the area will feel different from what it is today.
- Rejuvenation of Nearby Estates
Beyond Dairy Farm Road, a few nearby precincts are also undergoing changes that could gradually reposition this part of Upper Bukit Timah.
A significant precinct is Beauty World. The completion of The Reserve Residences will introduce a new retail mall, an integrated transport hub, and direct access to Beauty World MRT station on the Downtown Line. It’s a scale of rejuvenation we’ve seen before in places like Holland Village, and while outcomes can differ, it does suggest a more amenity-rich node forming not too far from Dairy Farm.
There’s also the upcoming Bukit Timah Integrated Community Development, slated to open around 2029. This will bring in everyday facilities such as a hawker centre, market and indoor sports hall, which are really the sort of infrastructure that you’d expect to support a growing residential catchment (rather than serve as a destination in itself).
Another area worth watching is Turf City. Plans here point to a sizeable amount of new housing (both private and public), alongside the Cross Island Line, which should improve connectivity compared to what the area has today. With that scale of development, it’s reasonable to expect more amenities to follow over time, gradually changing the lifestyle dynamics in this part of Singapore.
From a pricing perspective, recent land bids in the wider Bukit Timah area also provide some context. The first Dunearn Road GLS site was awarded at around $1,410 psf ppr, and with another GLS site confirmed nearby, new launch prices there are expected to be priced higher than where Narra Residences is currently positioned. Against that backdrop, Narra Residences’ pricing begins to look more palatable, particularly for buyers who are comfortable trading amenities and proximity for a lower psf price, space and greenery.
- Prices and resale transactions in the area vs indicative prices
For most of its history, Dairy Farm was primarily a landed enclave, with pockets of low-rise houses and some Good Class Bungalows. Condos only started coming in relatively recently, with projects like Dairy Farm Residences, Midwood and The Botany at Dairy Farm. Narra Residences is simply the next step in the development of this region.
Looking at resale prices nearby gives us more context. Midwood has transacted up to about $2,204 psf, Dairy Farm Residences around $1,950 psf, and The Botany at Dairy Farm has gone as high as roughly $2,402 psf. Against that backdrop, Narra’s indicative prices don’t feel particularly aggressive.
It’s also worth remembering that Narra is the only project in this District that has been designed under the post-GFA harmonisation framework. That means layouts will naturally feel different (and often more efficient) compared to older resale units.
In that sense, Narra Residences seems to be pricing itself at a point where the resale market has already accepted the prices. From that perspective, that’s a fairly safe proposition.
That said, there are a couple of considerations worth keeping in mind.
- Current lack of amenities in Dairy Farm
The most immediate drawback is the lack of amenities in the surrounding area. Dairy Farm Mall covers basic needs, but beyond that, options are limited compared to more established neighbourhoods. In practice, residents will likely find themselves driving out for most things , whether that’s dining, groceries beyond the essentials, or everyday services. This tends to be a common teething issue for developments in this part of Dairy Farm.
Narra Residences is also not within walking distance of an MRT station, which means buyers need to be comfortable with that trade-off. That said, this isn’t unique to Narra (it’s a constraint shared by most projects in the area) but it does reinforce the reality that this is a car-reliant location.
- Proximity to a Primary School
Narra Residences is accessed via a cul-de-sac, which it shares with an upcoming primary school. Right now, that actually feels like a plus. The road is quiet, there’s no through-traffic, and the arrival feels more private.
That changes once the school is up and running. With only one way in and out, school drop-off and pick-up hours will almost certainly bring some congestion. It won’t affect the whole day, but it’s something to factor in if you drive regularly during peak hours.
At Stacked, we like to look beyond the headlines and surface-level numbers, and focus on how things play out in the real world.
If you’d like to discuss how this applies to your own circumstances, you can reach out for a one-to-one consultation here.
And if you simply have a question or want to share a thought, feel free to write to us at stories@stackedhomes.com — we read every message.
Frequently asked questions
How many years left on the lease for Narra Residences?
Narra Residences has a 99-year leasehold starting from 1 July 2025.
What is the price range for units at Narra Residences?
Indicative prices start from about $998,000 for a one-bedroom plus study, up to $3.8 million for a five-bedroom unit with a private lift.
When does Narra Residences TOP?
The project is expected to TOP in the first quarter of 2030
Is Narra Residences close to an MRT station?
The nearest MRT station is Hillview on the Downtown Line, which is not within walking distance and is more car-oriented.
What amenities does Narra Residences offer?
It features a tennis court, a 50-metre lap pool, a gym, children’s pools, a family pavilion, a 5D sensory playroom, and four commercial units.
Who is the developer of Narra Residences?
The project is developed by Dairy Farm Walk JV Development Pte. Ltd., a consortium led by Apex Asia Development and Santarli Realty.
Join our Telegram group for instant notifications
Join Now


0 Comments