All reviews on Stacked are editorially independent. Developers can advertise with us, but
cannot
pay
for,
edit, or preview our reviews.
New Launch Condo Reviews
I Visited Rivelle EC’s Showflat: A 5-Min Walk To MRT, From $1,796 PSF — Here’s What Buyers Should Know
March 17, 2026 28 min read
| Project: | Rivelle Tampines |
|---|---|
| District: | 18, Tampines |
| Address: | 51 – 71 Tampines Street 95 |
| Tenure: | 99-year Leasehold from 05 February 2025 |
| No. of Units: | 572 Units |
| Site Area: | ~242,068.5 sq ft |
| Developer: | Sim Lian Group |
| TOP: | Q3 2030 |
At what point does the perception of an “affordable” housing alternative no longer feel all that affordable?
Executive Condominiums (ECs) occupy an interesting position within Singapore’s housing market. Designed as a more accessible pathway into private housing, they are a step up for HDB upgraders who aspire to eventually move into a condominium.
However, it could be argued that as price of new ECs increases, the purpose of this type of housing to bridge the gap has become less straightforward.
The launch of Rivelle Tampines, an EC project on Tampines Street 95, is an example of how the quality of development and buyers’ expectations in this segment have evolved, especially in terms of pricing and the quality of homes offered.
Early indications on the price of units at Rivelle Tampines emerged after the developer, Sim Lian Group, was awarded the site in 2024. The developer submitted the winning bid of $465 million, or $768 psf per plot ratio, briefly setting a new benchmark for an EC site at the time.
That record did not last long. It was surpassed by the sale of an EC site on Woodlands Drive 17 that was awarded to City Developments (CDL) after it submitted the top bid of $306 million ($782 psf ppr) in August 2025.
But Sim Lian clinched the top spot again when it successfully bid for a second EC site on Woodlands Drive 17, putting in the record bid of $484 million ($794 psf ppr) when the tender closed in January this year.

With land prices for recent EC sites trending upwards, it was expected that launch prices would gradually edge closer to those of some entry-level condominiums.
For Rivelle Tampines, indicative prices are expected to start from:
- Three-Bedroom Premium (883 sq ft) – from $1.588 million ($1,798 psf)
- Three-Bedroom Premium + Study (926 sq ft) – from $1.663 million ($1,796 psf)
- Four-Bedroom (1,044 sq ft) – from $1.893 million ($1,813 psf)
- Four-Bedroom Premium (1,184 sq ft) – from $2.129 million ($1,798 psf)
- Five-Bedroom (1,378 sq ft) – from $2.559 million ($1,857 psf)
For some new HDB upgraders entering the EC market for the first time, these prices may put a halt in their footsteps. It would surprise them to find out how quickly EC prices in the primary market have increased in recent years.
So many readers write in because they're unsure what to do next, and don't know who to trust.
If this sounds familiar, we offer structured 1-to-1 consultations where we walk through your finances, goals, and market options objectively.
No obligation. Just clarity.
Learn more here.
Following Aurelle’s success, Sim Lian’s bet on Tampines
This is not the first time Sim Lian is launched a new EC project in Tampines. It previously launched the 760-unit Aurelle of Tampines just last year, which saw strong buying demand that led to a take-up rate of 90% when it launched for sale, and set an average selling price of $1,766 psf.
The project was sold out a month later when applications opened for second-timer families, who snapped up the remaining units in under two hours.
The successful sales launch of Aurelle may have been helped by the timing of its launch, coming hot on the heels after Parktown Residence, which hit the market last February. That 1,193-unit condo is the residential component of the integrated development on Tampines Street 62.
Parktown Residence is positioned to anchor the development of the emerging Tampines North precinct, and the condo sold more than 87% of its units when it entered the market in February 2025. With Parktown Residence setting an average selling price of $2,360 psf at the time, most buyers considering Aurelle would likely have felt that it was a more accessible project.
Sim Lian also has a strong track record of developments in Tampines, including the mega-sized 2,203-unit Treasures at Tampines – which is Singapore’s largest condominium to date – and the 670-unit Tampines Trilliant, an EC at Tampines Central 7.
Having delivered several large-scale projects in the area, Sim Lian likely has a fairly good sense of what type of development tends to resonate with buyers in this region.
The launch of Rivelle Tampines also comes as several new projects in the East enter the market. It is the second new EC in the East this year after the launch of Coastal Cabana, a 748-unit EC on Jalan Loyang Besar in Pasir Ris. It is also the fourth new EC in the Tampines–Pasir Ris area in recent years, which has seen the entry of Aurelle of Tampines, Coastal Cabana, and the 618-unit Tenet on Tampines Street 62 which launched in 2022.
For now, at least, Rivelle Tampines also marks the final EC project that we expect to see in the East, before attention shifts to Woodlands for the next launch-ready EC project this year.
We also note that the launch of Rivelle Tampines will come a week before the sales launch of a nearby new project, Pinery Residences on Bedok Reservoir Road. Jointly developed by Hoi Hup and Sunway MCL, the mixed-use project has direct access to Tampines West MRT station.
Tampines West: A different neighbourhood from Tampines Central
In terms of its location, Rivelle Tampines sits within the Tampines West precinct, and this residential area has historically had a slightly different character compared to the more established neighbourhoods around Tampines Central.
Parts of the surrounding area around Tampines West are zoned for light industrial use, and this has had some influence on the project’s site planning. Guidelines for residential blocks near industrial areas include a buffer of about 100m to manage noise, air, and traffic issues.
This partly explains the layout and landscaping configuration you’ll see at Rivelle Tampines, and we touch more on that later.
The neighbourhood itself is a mix of established residential areas and developing zones. Most of the immediate surroundings consist of newer BTO projects such as Tampines GreenOpal and Tampines GreenJade, alongside educational institutions like Temasek Polytechnic, as well as industrial buildings and the nearby Bedok Reservoir.
As such, those expecting an area with the same level of development and commercial activity as Tampines Central may need to temper expectations.
An advantage here is the public transport connectivity. Tampines West MRT station on the Downtown Line is about a five-minute walk away, which is a notable perk given that many ECs tend to be located some distance away from MRT stations.

Amenities in the immediate vicinity are still relatively limited for now. The more recognisable landmarks nearby include SAFRA Tampines and yo:Ha Commercial, while those willing to venture a little further can head to Tampines Round Market.
There is also the upcoming Pinery Mall, the retail component of Pinery Residences, and its completion will elevate the retail offerings for residents in this area. It will likely echo the development of Parktown Residence and its retail mall, which will anchor the retail and lifestyle offerings in Tampines North.
Of course, if you don’t mind a short train ride, Tampines MRT interchange (along with the trifecta of Tampines 1, Tampines Mall and Century Square) is just one stop away.
As for schools, OneMap has yet to update the confirmed 1 km radius schools, though based on preliminary checks, there is a possibility that Junyuan Primary School, Tampines Primary School, St Hilda’s Primary School, and St Anthony’s Canossian Primary School could fall within the distance depending on the stack. Other nearby educational institutions are Temasek Polytechnic and a campus for the Singapore University of Technology and Design (SUTD).
Rivelle Tampines: anchored by its proximity to Bedok Reservoir
The overall design of the EC is inspired by its proximity to Bedok Reservoir, with the project adopting a “shaped by water” design narrative. Even the name of the EC feels like a natural continuation from Aurelle, but with a subtle nod to the nearby reservoir.
The project is designed by ADDP Architects. The architectural design of the façade adopts a sleek, modern style. It is a modest aesthetic that also helps the development stand out from the surrounding BTO blocks.

Rivelle Tampines comprises 11 residential blocks, with two blocks at 12 storeys, five at 13 storeys, and four rising to 14 storeys.
Based on the site plan and what’s showcased on the scale model, the landscape design is well distributed, and this approach towards landscaping is not often seen in a few previous EC developments. For example, the residential blocks at Aurelle of Tampines and Coastal Cabana are positioned close to one another to optimise land use with relatively little space for generous landscaping.
At Rivelle Tampines, the residential blocks are arranged into four clusters, forming a loose triangular configuration. Distances between blocks range from roughly 17 to 26 metres, with various facilities placed in between.

You may also notice that most of the condominium facilities are concentrated towards one corner of the development. This is largely influenced by planning requirements, as residential blocks must maintain a 100-metre distance from the nearby industrial zone.
One design feature that stands out is that each block features a point block layout. This is not something we see very often in EC projects, where longer slab blocks tend to be typical.
From a liveability standpoint, point blocks can offer a few advantages. Units typically enjoy greater privacy per floor, along with the potential for more windows and better cross-ventilation. Over time, these small details can make a noticeable difference in day-to-day living.

The main entry is located along Tampines Street 95, and a side gate facing the same road provides the most direct route to Tampines West MRT station as well as the upcoming Pinery Mall.
Parking provision here sits at about 80%, with 462 basement parking lots in total (including five EV charging lots and four accessible lots). Given that the MRT station is roughly a five-minute walk away, the ratio feels fairly reasonable.
In terms of facilities, Rivelle Tampines offers over 70 facilities, including eight pools. These range from a 50m lap pool and a 30m lap pool to leisure pools and family-oriented water play areas.

Sim Lian has historically been fairly generous when it comes to facilities in its developments. Sometimes that approach can result in facilities that feel more like items added to a checklist, but here the selection appears relatively practical.
The highlight is the Rivelle Clubhouse, which follows a kind of clubhouse-style bungalow concept and spans three storeys. Within it are amenities such as six BBQ pits, a kids’ party room, several function spaces, a gym, a dance studio, as well as tennis and pickleball courts.
Conceptually, having a centralised clubhouse does give the development a clear focal point for activities. The trade-off, however, is that this part of the project could become busier during peak periods.

As expected for an EC, the facilities here lean heavily towards families. There are several child-friendly amenities, including a family pool, kids’ pool, water play area and playground, along with open lawns where children can run around.
There are also quieter spaces catered to adults, such as a wellness pool, yoga deck and zen lawn.
EC developments have traditionally leaned more towards functionality rather than lifestyle-driven amenities, but that distinction has gradually softened over the years. Rivelle Tampines appears to reflect that shift.

Rivelle Tampines: Unit Mix and Layout Design
| Unit Type | Size (sqft) | No. of Units | % of Unit Mix |
| 3 Bedrooms | 883 – 926 sqft | 241 | 42% |
| 4 Bedrooms | 1,044 – 1,184 sqft | 291 | 51% |
| 5 Bedrooms | 1,378 sqft | 40 | 7% |
| 572 | 100% | ||
Rivelle Tampines, and other recent EC projects like Aurelle of Tampines and Coastal Cabana, are new EC projects that have been designed with the latest post-GFA harmonised framework. In simple terms, this means features such as air-conditioning ledges are no longer counted as part of the official unit size.
So, while the square footage might appear smaller on paper compared to older resale projects nearby, the usable space within the unit is largely similar. It also makes psf price comparisons between these newer launches a little more straightforward.
The unit mix at Rivelle Tampines comprises three- to five-bedroom units, and this choice clearly positions it as a development that caters to families.
Four-bedroom units account for just over half of the unit mix (51%), which is quite a departure from Aurelle of Tampines, where three-bedroom units made up around 65.8% of the units in that project.

Anecdotally, Stacked understands that buying demand at Aurelle leaned quite heavily towards the larger units, and this influenced the planning consideration of the developer when it came to deciding the unit mix at Rivelle Tampines.
That could explain why the EC has a noticeably higher proportion of four-bedroom homes, likely catering to families who found themselves needing a bit more space. The proportion of five-bedroom units also see a slight increase here, making up about 7% of the mix, compared to roughly 4% at Aurelle.
Unit sizes are also marginally larger across the board compared to Aurelle. While the extra space will certainly be welcomed by families, the flip side is that it pushes the overall quantum up, which is something some price-sensitive buyers may find a little harder to stomach given today’s EC prices.
Three-Bedroom Premium + Study: Type C2S (926 sq ft)

There are two types of three-bedroom units at Rivelle Tampines: the Three-Bedroom Premium at 883 sq ft, and the Three-Bedroom Premium + Study at 926 sq ft. The showflat is the larger unit.
This echoes the layout design at Aurelle, which had a trio of three-bedroom layouts ranging from 840 to 947 sq ft. In comparison, Rivelle’s entry-level unit is a bit bigger, but the top-end option is slightly smaller and there are fewer layout choices. Feels like Sim Lian might have taken some lessons from Aurelle’s take-up.
Keeping just two layouts also gives us some insight into the expected buyer profile. If you want the extra 43 sq ft from the study, the larger unit makes sense. If you just need a straightforward three-bedroom, the smaller one works fine.

What’s nice is that both units, constructed using the prefabricated pre-finished volumetric construction (PPVC) method, also offer a great degree of flexibility in terms of space planning. A portion of the wall between bedrooms can be hacked, which is a real plus for families wanting to adapt the space over time.
The layout is typical of new developments in recent years: a T-shaped configuration, with a long, deep living room and a hallway that leads to all the bedrooms. The show flat comes with three bedrooms, two bathrooms, a balcony, and an enclosed kitchen with a home shelter and WC. It’s not going to wow anyone looking for huge living spaces, but it works since there’s a clear separation between living and dining, which is what most Singaporean families often prefer.

Where Rivelle Tampines starts to stand out is the choice of brands for its appliances. The kitchen comes with a built-in cooker hood, gas hob, and oven from Kuche, a premium brand we usually only see in private condos. There’s also a Samsung washer-cum-dryer, which isn’t standard in most ECs. A fridge isn’t provided.
Finishes are also a bit different from what we normally see. The entry, living, and bedrooms feature vinyl flooring. We typically see this type of flooring choice in most ECs and new projects in the Outside Central Region (OCR), and improvements in the quality of vinyl flooring has seen more developers adopt this. Meanwhile, the kitchen, bathrooms, and balcony are tiled, and the ceiling height sits at 2.7 metres.
The living and dining area is straightforward. The entryway opens directly into the combined space, with the ID adding a compact four-seater dining table, while the living area can fit a three-seater sofa and TV console without feeling cramped.
Together, the entry, dining, and living areas measure around 24 sqm.

The balcony extends from the living room, though it’s on the compact side. It’s better suited for light seating rather than a full dining set. There’s a power point, but no water point.
At 6 sqm, you could fit a small table to open the living room, but you’ll need to be mindful of furniture size. The width isn’t generous either, so the balcony feels narrow and deep rather than wide.
The kitchen, meanwhile, is 8 sqm and comes with a double-counter layout, with the yard positioned at the back. There’s a window at the rear, so the kitchen can be fully enclosed, which is something many families tend to prefer today.

There’s also a glass panel facing the living area, which helps bring in light from the front of the unit. Without it, this part of the kitchen might have felt a little darker, so it’s a thoughtful touch that keeps the space feeling connected to the rest of the home.
It’s not the most spacious kitchen, but it’s functional and enough for families who just want a straightforward, no-frills setup. As previously mentioned, appliances include a Küche built-in cooker hood, gas hob, oven, and a Samsung washer-cum-dryer. Some buyers might be interested to know that this is the first time an EC project is providing a washer-dryer combination as an appliance.
At the back, there’s a 4 sqm home shelter, which can double as storage or a helper’s room if needed. The adjacent WC is 1 sqm, and it comes with a window for natural ventilation, which is a thoughtful touch.

The two common bedrooms are 9 sqm each, which is fairly standard for bedrooms in new projects today. They can comfortably fit a queen bed and built-in wardrobe, and full-height windows bring in extra light.
The walls between these rooms can be partially hacked and combined, and the showflat demonstrates this option, though a small portion of the load-bearing wall will remain.
The common bathroom, sized at 4 sqm, would likely be shared by these bedrooms and guests. The fittings feel slightly more premium than typical EC standards, with a window for ventilation, and Villeroy & Boch white goods including a wall-hung WC, basin, and mixers.
Seeing that ECs are not known for providing premium fittings, it’s a detail that will likely stand out to buyers.

Beside the master bedroom is the study, sized at 4 sqm, which the IDs have combined with the master in the showflat.
There’s a lot to like about this space. For one, its placement right next to the master makes it feel more private, and it could even be used as a walk-in wardrobe if you need extra storage beyond the built-in wardrobe.
The study also comes with a window, which is quite rare for a 3-bedroom EC. This is one of the benefits of the point block design, which allows layouts to include more windows. The result is a space that’s well-lit and versatile, suitable for a home office, wardrobe, or even a small reading nook.

The master bedroom itself measures 12 sqm and features a full-height window. Even with a king-sized bed and the two-panel built-in wardrobe, there’s still ample circulation space.
The master bathroom comes in at 5 sqm and is fully fitted with Villeroy & Boch white goods, including a wall-hung WC, basin, and mixers, plus a rain shower. The window here provides natural ventilation, and the overall fit-out feels closer to what you’d expect in a condo than a typical EC.
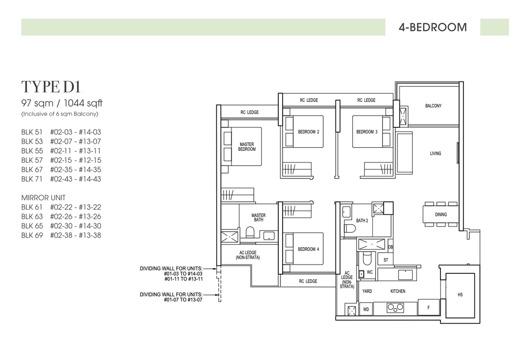
Four-Bedroom: Type D1 (1,044 sq ft)

Unsurprisingly, the four-bedroom units have the most variety. There are four types in total: the entry Four-Bedroom, Four-Bedroom + Study, Four-Bedroom Flexi, and the Four-Bedroom Premium, with sizes ranging from 1,044 sq ft to 1,184 sq ft.
Considering that four-bedders make up 51% of the unit mix, this isn’t too surprising. Families looking for a four-bedroom don’t all want the same thing. Some might prefer a bigger living area, while others just want four proper bedrooms without paying for extra space they don’t really need.
It feels like Sim Lian might have taken some feedback from Aurelle of Tampines and used that to improve their design choices here. Back then, the jump from the entry four-bedroom at 1,023 sq ft to the next Flexi layout at 1,195 sq ft was quite a big one.
From what we heard, some buyers wanted the extra bedroom but found the jump in size (and therefore the price), a bit hard to justify. So, at Rivelle, having a few more options in between probably helps smooth that gap out a little.
In any case, the showflat here represents the entry-level four-bedder, which comes in at 1,044 sq ft. In many ways, it feels quite similar to the three-bedroom we just looked at.

For starters, it follows the same T-shaped layout, with a hallway that leads to the bedrooms. The unit comes with four bedrooms, two bathrooms, a living area with a balcony, and a kitchen that includes a WC and home shelter.
For families looking for something efficient and straightforward, this layout should feel fairly familiar. Even though the unit is built using PPVC, the layout still allows for some flexibility. Most of the internal walls can be hacked, which is useful for families who may want to reconfigure the space over time.
The finishes are also slightly different from what we usually see in ECs. The entry, living area, and bedrooms come with vinyl flooring – and we echo our earlier comment in the three-bedder section. The kitchen, bathrooms, and balcony remain tiled, and the ceiling height is 2.7 metres.
Entering the unit feels very similar to the 3-bedroom. There isn’t much of a foyer space, so the door opens directly into the dining area on the right, with the kitchen immediately on the left.


The kitchen is slightly larger here at 9 sqm and comes with a double-counter layout. One side handles the prep and washing area, while the other is used for cooking.
One small detail I quite like is the glass panel by the sink, which looks out towards the living area. It allows some natural light to filter into the kitchen and helps the space feel a little less closed off.
As mentioned earlier, the appliances are where this unit stands out a little. The kitchen comes with a built-in cooker hood, gas hob, and oven from Küche, which is a brand we more commonly see in private condos. There’s also a Samsung washer-cum-dryer, something that isn’t typically provided in most ECs and a first for this market segment. A fridge isn’t included.
The home shelter, sized at 4 sqm, sits at the corner of the kitchen. It can serve as additional storage, or potentially as a helper’s room if you have live-in help.
At the back, there’s also a window where the yard area is located (though it’s really more of a small extension of the kitchen rather than a full yard). Still, it works well enough for air-drying laundry. The WC, which is about 1 sqm, is located here as well, and it comes with a window for natural ventilation, which is always a welcome feature.
Right beside the DB box, there’s also a small storage nook. It’s really just an open space, so what you do with it is up to you. In the showflat, the IDs added some shelving and turned it into a compact drinks display, but I can imagine it being useful for storing appliances or even luggage.


Together, the entryway, living, and dining areas measure about 28 sqm. The dining space can comfortably take a six-seater table, while the living area fits a three-seater sofa and TV console without feeling too tight.
Depending on how you furnish it, there’s also some flexibility here. You could choose to allocate a bit more space to the living area or prioritise a larger dining setup if that suits your lifestyle better.
The living area then extends out to the 6 sqm balcony. Because the unit frontage is fairly compact, the balcony feels more narrow than wide, so realistically it would fit up to a four-seater dining set. There’s an electric point provided, though no water point.
The common bathroom will likely see quite a bit of use, since it’s shared by the three common bedrooms as well as guests. It’s sized at 4 sqm, and the fittings feel slightly more premium than what you might typically expect from an EC. There’s a window for ventilation, along with Villeroy & Boch fittings, including a wall-hung WC, basin, and mixers — a detail that will probably stand out to some buyers.

All three common bedrooms are sized at 9 sqm, which is fairly typical for bedrooms in most new launches today. Each comes with full-height windows, though the views will depend on which room you take. They can comfortably fit a queen-sized bed along with the built-in wardrobe, which is standard for most EC and condo bedrooms.
There’s also the option to combine Bedrooms 2 and 3, leaving a small section of the wall intact. That gives you a combined space of about 18 sqm, which could work well as a larger bedroom or even a bedroom with a study area.
Having this level of flexibility isn’t something we see very often in EC layouts, so it’s a nice option to have. The full-height windows across all the bedrooms are also a plus, and likely made possible by the point block design.

The master bedroom comes in slightly larger at 13 sqm, paired with a 5 sqm master bathroom. The bedroom can comfortably accommodate a king-sized bed, along with the standard built-in wardrobe. That said, the wardrobe here is a two-panel setup, which may feel a little tight for two people, so homeowners might have to get a bit creative with additional storage.
The master bathroom continues with the same Villeroy & Boch fittings, including the wall-hung WC, basin, and mixers, along with a rain shower. There’s also a window for natural ventilation.
Five-Bedroom: Type E1 (1,378 sq ft)

The five-bedroom unit is really for families who want the extra space. That said, it only makes up 7% of the unit mix. There’s only one five-bedroom layout, which is also the showflat unit, sized at 1,378 sq ft.
It’s quite a jump from the largest four-bedroom at 1,184 sq ft, so this option will likely appeal to buyers who genuinely need the additional bedrooms and living space.

In terms of layout, it’s actually quite similar to the four-bedroom we saw earlier. It still follows that T-shaped configuration, with a long hallway that leads to the bedrooms and bathrooms. The main differences are the wider living frontage and the addition of a dry kitchen.
The unit comes with a wide balcony, a spacious living and dining area with a dry kitchen, five bedrooms, three bathrooms, as well as a home shelter and WC.
Even though the unit is built using PPVC, there’s still some flexibility here. Most of the internal walls can be hacked, which is useful for families who may want to reconfigure the space over time.
The finishes are also consistent with the rest of the development. The entry, living area, and bedrooms come with vinyl flooring, while the kitchen, bathrooms, and balcony are tiled. Ceiling height here is 2.7 metres.

Like the smaller unit types, there isn’t much of a foyer space when you enter. That might come as a bit of a surprise for a five-bedroom unit, since many larger homes usually provide at least a small entry buffer for privacy. Here, the door opens directly to the dry kitchen on the right and the living area on the left.
The dry kitchen itself measures about 5 sqm, overlooking the living and dining area with countertop space on both sides. There’s also a nook for the fridge, although like most ECs, a fridge isn’t provided as part of the standard appliances.

Moving into the wet kitchen, it measures about 8 sqm. For a 5-bedroom unit, some might find it a little on the compact side, though it remains functional overall.
The layout is L-shaped, with the sink along one side and the cooking and prep area on the other. This then leads into the yard space, which is more of a small extension of the kitchen rather than a full yard. For a unit of this size, some buyers might have expected something a little larger, so it’s worth tempering expectations here.
That said, there is a window at the back, which means the kitchen can be fully enclosed if preferred, while still allowing for natural ventilation and laundry drying.
One small detail I quite like is the glass panel near the sink overlooking the living area. It brings in a bit more natural light and helps the kitchen feel less closed off from the rest of the home.
The home shelter, sized at 4 sqm, sits at the back and could double up as a helper’s room for families with live-in help. Right beside it is the 1 sqm WC, which also comes with its own window for ventilation.
Let’s move on to the main living area, which benefits from a wider frontage of about 5.05 metres. That extra width makes the space feel noticeably more open compared to the smaller units. Following the showflat setup, the layout can comfortably accommodate a three-seater sofa, TV console, and an eight-seater dining table without feeling overly cramped.

This space extends out to the balcony, which carries the same 5.05-metre frontage. It’s about 1.1 metres deep, coming in at roughly 11 sqm in total. With that width, you could also shift the dining set out here if you prefer an outdoor dining setup.
The balcony comes with an electric point, though there isn’t a water point provided.
From the living area, the rest of the bedrooms branch off along a hallway that stretches about 7.5 metres, leading to the private sleeping quarters.
Along one side of the unit are three common bedrooms, each sized at 9 sqm. They’re similar in layout. All come with full-height windows, a two-panel built-in wardrobe, and can fit a queen-sized bed comfortably. So, there isn’t really a bedroom here that feels noticeably better than the others.
One thing I like about this layout is the flexibility. The walls between the bedrooms can be partially hacked (with a small portion of the load-bearing wall remaining), so there’s some room to reconfigure the space if needed.

The show flat unit demonstrates this by combining Bedroom 3 with the master bedroom, turning it into a walk-in wardrobe and small lounge area. There are also some minor tweaks elsewhere, like the wall adjustment between Bedrooms 4 and 5 to create extra storage.
The junior master bedroom is also 9 sqm, though the key difference is that it comes with its own ensuite bathroom. It can still comfortably fit a queen-sized bed, along with the standard two-panel built-in wardrobe, and it also benefits from a full-height window.
The junior bathroom itself is about 4 sqm and comes with a window for ventilation, which is always a nice plus. The fittings are also slightly more premium than what you might expect from an EC, with Villeroy & Boch white goods, including a wall-hung WC, basin, and mixers.
On the other side, the common bathroom is essentially a mirror of the junior master bathroom. It’s also 4 sqm, and similarly comes with a window for ventilation, along with Villeroy & Boch fittings, including a wall-hung WC, basin and mixers, and it’s something that will likely stand out to buyers who don’t usually expect this level of finishing in an EC.


Finally, we have the master bedroom, which sits right at the end of the hallway. On its own, it’s sized at 17 sqm. There’s a four-panel built-in wardrobe just outside the sleeping area. Instead of sliding panels, the wardrobe uses hinged doors, which can feel a little awkward if all the doors are opened at once — though most homeowners will probably appreciate the additional storage.
The sleeping area itself sits beside a full-height window and can comfortably accommodate a king-sized bed, with enough space left over for something like a vanity or small lounge chair.
In the showflat, the IDs have taken things a step further by combining the master bedroom with Common Bedroom 3, turning it into a much larger suite with a walk-in wardrobe and lounge area. If done this way, the space expands to about 28 sqm, which does feel noticeably more generous.
The master bathroom sits just beside the bedroom and measures 5 sqm. It continues with the same Villeroy & Boch fittings, including the wall-hung WC, basin and mixers, along with a rain shower. There’s also a window for natural ventilation.
One thing you might notice across the unit is the number of windows and natural ventilation points. This is largely made possible by the point block design, which tends to allow for more windows within each layout, which helps with the overall liveability of the space.

Writer’s Commentary from Cheryl, contributing writer
There are a few ways I’ve been thinking about Rivelle Tampines. One is from the broader EC perspective, and the other is simply from a product standpoint.
From a market perspective, Rivelle Tampines is joining the ranks as the fourth EC launch in the East in the past five years, after Tenet, Aurelle of Tampines and Coastal Cabana. Looking at these launches together, the trajectory is clear: prices have steadily climbed, and price-wise, the line between ECs and private condominiums has slowly started to blur.
The land bids themselves also tells a similar story. Recent EC sites in Woodlands and Senja have continued to push land price benchmarks upwards, suggesting that developers are increasingly confident about where the EC segment can price today. In other words, Rivelle’s prices don’t feel like an isolated case and it looks more like part of a broader shift in how the EC segment is being positioned in today’s market.
But the EC becomes a little more interesting when you look at the product itself.
Aside from the obviously more premium fittings (e.g. Kuche kitchen appliances, vinyl flooring throughout the units, and a wide variety of condo facilities), there’s a lot of thought behind the design of the space.
For one, the development adopts a point block configuration, which is something we don’t see as often these days especially in the EC segment. The advantage here is that it usually allows for less crowds per floor, and more windows per unit, which can help with liveability.
The layouts themselves also feel consistent with what Sim Lian has historically delivered. The developer has generally leaned towards practical and straightforward floorplans rather than overly experimental ones, which tends to resonate well with EC buyers who prioritise liveability. The customisable layouts would probably also sit well with families now and in the future resale market as well.
One shift that did stand out to me is the higher proportion of 4-bedroom units. This likely reflects some of the demand patterns seen at Aurelle of Tampines, where larger homes appeared to attract stronger interest. For families upgrading from nearby HDB estates, that extra bit of space can often make a meaningful difference.
Another point worth considering is Rivelle’s immediate surroundings. Much of the neighbourhood is made up of relatively newer BTO developments such as Tampines GreenOpal and Tampines GreenJade. Since EC buyers are often HDB upgraders, it does make me wonder if a good portion of the nearby upgrader pool may already be relatively settled for now. In that sense, Rivelle Tampines may end up drawing buyers not just from the immediate vicinity, but from the wider Tampines and Pasir Ris region.
Of course, the flip side of larger homes and rising EC prices is the overall purchase quantum. As EC prices edge closer to private condominium prices, buyers may find themselves weighing the appeal of additional space against the higher upfront cost.
So perhaps the real question now is what the role of ECs is meant to be today. With projects like Rivelle Tampines offering more space, stronger fittings and prices edging closer to private condominiums, the segment feels like it has slowly drifted from its original purpose, even if the demand for it clearly remains.
So, keeping this in mind, these are the considerations I would make if I were thinking of buying a unit at Rivelle Tampines:
- Located in a BTO-heavy neighbourhood
Much of the immediate surroundings around Rivelle Tampines consists of relatively newer BTO projects such as Tampines GreenOpal and Tampines GreenJade. Since EC buyers are often HDB upgraders, this can be a double-edged sword.
On one hand, being surrounded by HDB estates typically means a steady pool of potential upgraders over time. On the other hand, many of these BTO developments are still relatively new, which means some of the nearby homeowners may not yet be ready to upgrade.
As a result, Rivelle Tampines may find itself drawing interest not just from the immediate neighbourhood, but from the wider Tampines and Pasir Ris region, where upgrader demand (especially for bigger units) has historically been quite strong.
- Point block designs – Effects on Liveability and Future Resale
Rivelle Tampines adopts a point block configuration, which is something we see less often today, especially for ECs.
From a liveability standpoint, point blocks can have their advantages. They typically allow for more privacy on each floor and more windows per unit, which can improve ventilation and natural lighting.
From a resale point of view, this is generally a plus point.
- Proximity to Bedok Reservoir & Walkability to Tampines West MRT Station
Another factor that could appeal to some buyers is Rivelle’s proximity to Bedok Reservoir, as well as its relatively short walk to Tampines West MRT station on the Downtown Line.
From a practical standpoint, being within walking distance of an MRT station is still a meaningful advantage, particularly for an EC. Many EC developments tend to sit further away from train lines, so having a station about a five-minute walk away does make daily commuting more convenient.
At the same time, the nearby Bedok Reservoir Park adds a lifestyle dimension to the location. For residents who enjoy outdoor activities, the park is a fairly popular spot for running, cycling and water sports, offering a recreational outlet that isn’t always available within suburban neighbourhoods.
While the reservoir may not be the primary reason someone chooses to live here, having both connectivity and access to green spaces within close reach does add a layer of liveability to the area.
- The Effect Pinery Residences Could Have on the Area
Rivelle Tampines is also launching shortly before Pinery Residences, a mixed-use development located diagonally across the site with direct access to Tampines West MRT station.
If completed as expected, this could introduce additional retail and dining options within walking distance, which is something the immediate neighbourhood currently lacks.
In some ways, this situation feels somewhat similar to Tampines North, where Tenet EC was launched before ParkTown Residences and ParkTown Mall, which eventually helped anchor more amenities in the area. Pinery could potentially play a similar role here, alongside developments like yo:HA Commercial.
Of course, how much of an impact this has will likely depend on factors such as the eventual pricing of Pinery Residences and the scale of the retail offering.
For Rivelle buyers, it simply means the neighbourhood today may look quite different from what it could become in the next few years.
That said, there are a couple of considerations worth keeping in mind:
- Proximity to an industrial area
One factor some buyers may want to keep in mind is Rivelle’s proximity to the surrounding light industrial zones in Tampines West.
While these areas are largely made up of business parks and light industrial buildings rather than heavy industry, they do give this part of Tampines a slightly different character compared to the more established residential pockets closer to Tampines Central.
This also explains some of the planning decisions within the development. For example, residential blocks cannot be positioned within 100 metres of industrial plots, which influences the layout and positioning of buildings within the site.
For most residents, this may not necessarily be a dealbreaker, but it is something that contributes to the overall feel of the neighbourhood.
- Neighbourhood amenities are still developing
Another consideration is that amenities in the immediate vicinity are still somewhat limited compared to what you would typically find in Tampines Central.
While there are some nearby landmarks such as SAFRA Tampines and yo:HA Commercial, the area does not yet have the same concentration of retail and dining options as the main Tampines town centre.
That said, this may gradually change over time. The upcoming Pinery Residences, which is expected to include a retail component, could introduce more walkable amenities to the area in the future.
In the meantime, residents who don’t mind travelling a little further will find that Tampines MRT interchange, along with Tampines Mall, Tampines 1 and Century Square, is just one train stop away.
- Starting Prices of Pinery Residences
Pinery Residences is expected to launch shortly after Rivelle Tampines, and its starting prices could become an important point of reference for buyers considering the two projects.
Traditionally, ECs and private condominiums have catered to fairly distinct buyer groups, with price serving as the main differentiating factor. However, as EC prices have risen and the overall product offering has improved, that distinction has gradually become less clear.
As such, the eventual pricing of Pinery Residences could influence how buyers perceive Rivelle’s value proposition. If the price gap between the two projects is relatively narrow, some buyers may find themselves weighing the benefits of an EC against a fully private development more closely.
- Surrounding Plots in The Vicinity
According to the URA Master Plan, there are several neighbouring plots around Rivelle Tampines that are worth keeping in mind. These include a site next to the development that is zoned for hospital use, as well as nearby plots designated for a place of worship, transport facilities, and two reserved sites.
Eventually, the usage of these sites may influence the overall liveability of the area in the future.
- Remaining EC Supply in the East & The Purpose of an EC
Another consideration is the remaining EC supply in the East, especially for buyers who want to stick to the original purpose of an EC. The obvious alternative today is Coastal Cabana, which is almost 70% sold at the time of writing. That leaves relatively few options if you’re set on the East.
For those willing to explore other locations, upcoming EC launches are primarily in Woodlands and Senja, which could provide more choices.
At the same time, with EC prices steadily climbing, it’s worth pausing to consider what an EC is really for. Are you buying it for its affordability relative to private condos, for the lifestyle, or simply as a stepping stone for future resale? Thinking through the purpose of an EC in today’s market (and whether it actually fits your needs), feels more important than ever.
At Stacked, we like to look beyond the headlines and surface-level numbers, and focus on how things play out in the real world.
If you’d like to discuss how this applies to your own circumstances, you can reach out for a one-to-one consultation here.
And if you simply have a question or want to share a thought, feel free to write to us at stories@stackedhomes.com — we read every message.
Join our Telegram group for instant notifications
Join Now


0 Comments