Ikigai (いきがい), which means “reason for being” in Japanese, is a freehold condominium located along Shrewsbury Road in Novena (District 11). This 16-unit development adopts a minimalist, Japanese-themed approach, with references to Japan’s cultural philosophy and materials.
One of the highlights is the short walk from Novena MRT (NSL); but for drivers, Ikigai also provides access to the Central Expressway (CTE) and the upcoming North-South Corridor. Nearby retail hubs like Velocity @ Novena Square and United Square provide alongside everyday amenities such as supermarkets, eateries, and clinics, so whilst Ikigai is very much an own-stay product, it can also be a rental asset.
Families might also notice the nearby schools, which include St. Joseph’s Institution Junior, ACS (Primary), and Singapore Chinese Girls’ School.
A quieter residential pocket within Novena
The challenge for many buyers today isn't access to information.
It's interpreting that information in a way that makes sense for their finances, goals, and stage of life.
Over time, that's also why we decided to work with agents who shared the same data-driven and advisory-led approach behind our editorial, consultants who could help readers think through decisions more objectively, rather than simply push transactions.
Today, the team has worked with more than 2,000 clients across over $5B in property transactions.

While Novena is a heavily built-up central neighbourhood, Shrewsbury Road offers a lower-density, more private setting than the surrounding commercial areas. This makes Ikigai a good choice for those who need Novena’s centrality, but want to maintain some distance from the crowds and traffic.
The Shrewsbury area also makes sense because of the boutique, 16-unit count of the condo: privacy is already a key feature, so it complements the lower-density zones of Novena.
The freehold tenure may also appeal to those planning for longer-term residence ownership, or for legacy planning.
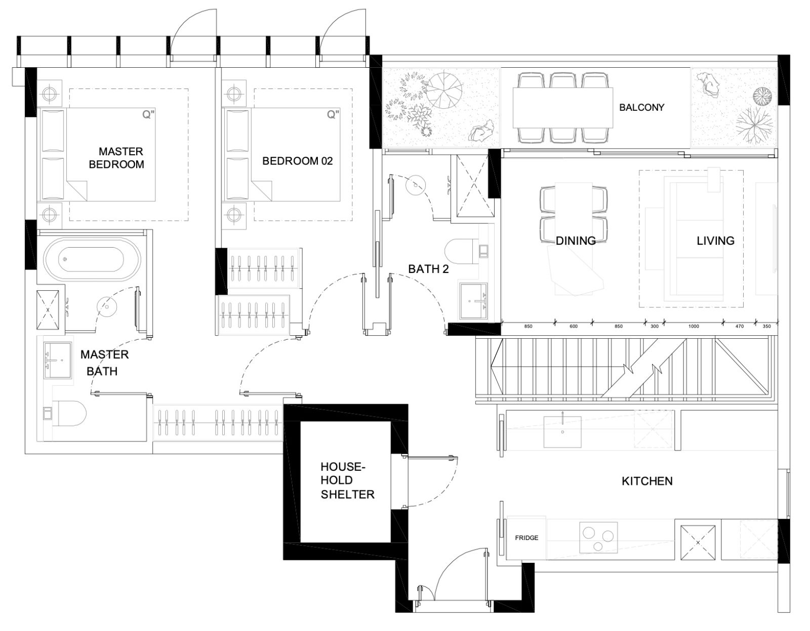
Architecture and space planning
Designed by architect Yip Yuen Hong, Ikigai’s exterior features a concrete façade inspired by shou sugi ban, a Japanese technique of preserving timber by charring. The result is a subdued, textured surface that contributes to the project’s overall sense of calm and stillness.
One big advantage of this aesthetic is that it’s perennial, so ageing will be less obvious compared to trend-based styles.

Shoji-style screens help filter light indoors, creating softly lit interiors with an emphasis on usable, open spaces. That means actual livable space, and not square footage wasted on extraneous details like big bay windows or planter boxes.

Storage is built into the units through concealed, functional carpentry, with the general design favouring livability over spectacle. Larger bedroom layouts and high ceilings aim to offer a sense of airiness, especially in the penthouse units.
Landscape and facilities
Despite the boutique scale, Ikigai includes a landscaped garden, gym, and swimming pools. This is a credit for a boutique condo, where facilities are usually kept at a minimum. The Machiai Pavilion – a reference to Japanese waiting areas often found in temples and gardens – is one of several contemplative spaces on the grounds. Plant choices blend Japanese and tropical varieties, including Crepe Jasmine and Japanese Yew.

The rooftop garden and poolside areas are designed to encourage slower, quieter moments within an otherwise central location. If Ikigai were in a busier part of Novena this wouldn’t work as well, as there’d be too many other tall buildings looming; so the Shrewsbury Road location works well for this.
Remaining availability



















At the time of writing, only two penthouse units remain available. Both are duplexes with high ceilings, outdoor spaces, and built-in storage solutions:
- #05-02 (3BR Penthouse) – 1,496 sqft | $3,465,280 ($2,316 psf)


- #05-01 – 1,915 sqft (3BR + Study Penthouse) | $4,429,600 ($2,313 psf)


Both units come with a free furniture deck of approx. 54 sq. ft., or a $50,000 discount.
Context in today’s market
Compared to other recent freehold launches in the Core Central Region, which often range above $2,500 to $3,000 psf, Ikigai sits on the lower end of the spectrum in terms of price. The combination of unit size, tenure, and design detailing is relatively uncommon in Novena, particularly among smaller-scale projects.
Overall, the pricing is quite surprising and reasonable, in the context of a Novena-area boutique condo. The two penthouse units will interest those who prize privacy and spaciousness, such as buyers moving from the landed living segment.
To find out more about what’s on offer, you may get in touch with the developer directly via WhatsApp, Email or visit the Link here.
The above was brought to you by Ikigai. We’ve included it here because we believe it contains verifiable or interesting information that could be useful to you. If you prefer not to read such content however, you may want to skip it.
At Stacked, we like to look beyond the headlines and surface-level numbers, and focus on how things play out in the real world.
If you’d like to discuss how this applies to your own circumstances, you can reach out for a one-to-one consultation here.
And if you simply have a question or want to share a thought, feel free to write to us at stories@stackedhomes.com — we read every message.
Ryan J. Ong
A seasoned content strategist with over 17 years in the real estate and financial journalism sectors, Ryan has built a reputation for transforming complex industry jargon into accessible knowledge. With a track record of writing and editing for leading financial platforms and publications, Ryan's expertise has been recognised across various media outlets. His role as a former content editor for 99.co and a co-host for CNA 938's Open House programme underscores his commitment to providing valuable insights into the property market.Need help with a property decision?
Speak to our team →Read next from On The Market
On The Market Here Are 5 Large 3-Bedroom Condos With 1,700 Sqft+ Space — Under $2M
On The Market Here Are 5 Of The Biggest And Cheapest HDB Flats Near MRT Stations — Under $1M
On The Market New Melbourne CBD Development 623 Collins Launches From AUD 610K
On The Market 4 Freehold Terrace Houses Under 1 Strata Title In Novena’s Chancery Hill — On The Market For $35M
Latest Posts
PRO Pro This Prime Area In Singapore Still Has Condos Under $2M — Despite Nearby Prices Climbing Much Higher
Property Advice We Have $1.5M–$1.8M For A Second Property — Should We Buy A New Condo Or Resale In 2026?
Singapore Property News Four Rare Freehold Retail Units Have Just Been Put Up For Sale — In A Sought-After Residential Enclave
0 Comments