Record $1.27M Sale Makes This 30-Year-Old HDB The Town’s Priciest Yet
Get The Property Insights Serious Buyers Read First: Join 50,000+ readers who rely on our weekly breakdowns of Singapore’s property market.
A seasoned content strategist with over 17 years in the real estate and financial journalism sectors, Ryan has built a reputation for transforming complex industry jargon into accessible knowledge. With a track record of writing and editing for leading financial platforms and publications, Ryan's expertise has been recognised across various media outlets. His role as a former content editor for 99.co and a co-host for CNA 938's Open House programme underscores his commitment to providing valuable insights into the property market.
October 2025 saw a new record in the north: an executive flat at Block 850, Woodlands Street 82, transacted for $1.27 million. This sets a fresh benchmark for executive flats in the area, eclipsing the previous high of $1.19 million (just a short walk away) by a margin of $80,000.
That also makes this the 69th million-dollar executive flat in Woodlands, which is an upcoming area due to planned transfomations.
What Makes This Flat Stand Out?

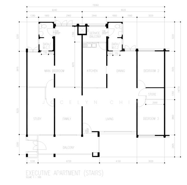
- Size matters: At 177 sqm (~1,905 sq ft), this is one of the larger executive flats, with a rectangular layout that allows flexible configuration. There’s also a balcony at the entrance, which is an added bonus.
- Location: It’s between Woodlands MRT and Admiralty MRT, each just over a10-minute walk away. While not exactly close on foot, the block is about five minutes to Woodlands North Plaza, with a food court, McDonald’s, and daily conveniences nearby.
- Surroundings: Views are definitely not the main attraction here, as the block is surrounded by other HDB blocks. What carries this unit is size and functionality rather than scenery.
A Record Price In Context
At $1.27 million, this executive flat was priced higher than most current listings. PropertyGuru’s asking prices for executive flats in the area now start from around $1 million.
As with the other million-dollar flats in Woodlands, this unit is still an outlier; but the number of such transactions here is growing. To date, there are 1,251 million-dollar HDB flat transactions, and Woodlands makes up just 1.9 per cent of these transactions (all of which are Executive flats). The price is not entirely surprising given the current market situation: as newer condos shrink in size, large HDB units from the ’90s are increasingly valued by buyers who prioritise liveable space.
More from Stacked
Where Are Singapore’s Most Flood-Prone Hotspots And What You Need To Know About Living In These Areas
I'm writing on January 14th 2025, in one of the rainiest months I've ever seen in Singapore. It's a testament…
With the end of SERS at top of mind for many older HDB owners, lease decay is a bit of a consideration; but his block’s lease began in 1995, which means there are still about 68 years left. At 30-odd years of age, it remaining lease is still viable for most buyers, and shouldn’t cause financing complications. And whilst not as “young” as some million-dollar flats in other towns, the space trade-off remains compelling.
In any case, this record sale is by now a familiar story: size continues to be the one commodity buyers are willing to pay for, even in non-central locations. This is also helped by long-term prospects in Woodlands: with the development of Woodlands North Shore, and the upcoming RTS link to Johor, Woodlands is likely to see higher demand in the near furture.
While it lacks direct MRT access or sweeping views, the sheer square footage – coupled with the pace of improvements in the general neighbourhood – provided a good amount of price support.
At Stacked, we like to look beyond the headlines and surface-level numbers, and focus on how things play out in the real world.
If you’d like to discuss how this applies to your own circumstances, you can reach out for a one-to-one consultation here.
And if you simply have a question or want to share a thought, feel free to write to us at stories@stackedhomes.com — we read every message.
Ryan J. Ong
A seasoned content strategist with over 17 years in the real estate and financial journalism sectors, Ryan has built a reputation for transforming complex industry jargon into accessible knowledge. With a track record of writing and editing for leading financial platforms and publications, Ryan's expertise has been recognised across various media outlets. His role as a former content editor for 99.co and a co-host for CNA 938's Open House programme underscores his commitment to providing valuable insights into the property market.Read next from Singapore Property News
Singapore Property News When A “Common” Property Strategy Becomes A $180K Problem
Singapore Property News Tanjong Rhu’s First GLS In 28 Years Just Sold For $709M — Here’s What The Next Condo May Launch At
Singapore Property News Singapore’s CBD Office Rents Have Risen For 7 Straight Quarters — But Who’s Really Driving The Demand?
Singapore Property News 19 Pre-War Bungalows At Adam Park Just Went Up For Tender — But There’s A Catch
Latest Posts
Property Market Commentary Why Some Old HDB Flats Hold Value Longer Than Others
Overseas Property Investing What Under $200K Buys In Malaysia Today — From Freehold Apartments to Beachfront Suites
Overseas Property Investing A London Landmark Is Turning Into 975-Year Lease Homes — And The Entry Price May Surprise Singapore Buyers
On The Market Here Are The Biggest HDB Flats You Can Still Buy Above 1,700 Sq Ft In 2026
Pro We Analysed HDB Price Growth — Here’s When Lease Decay Actually Hits (By Estate)
Editor's Pick I’m 55, Have No Income, And Own A Fully Paid HDB Flat—Can I Still Buy Another One Before Selling?
BTO Reviews February 2026 BTO Launch Review: Ultimate Guide To Choosing The Best Unit
Pro Why Buyers in the Same Condo Ended Up With Very Different Results
Property Market Commentary Why Early Buyers In New Housing Estates May See Less Upside In 2026
Editor's Pick This Overlooked Property Market Could Deliver 12–20% Growth — But There’s a Catch
Property Market Commentary Landed Home Sales Hit a Four-Year High — Here’s What That Could Mean for Prices in 2026
On The Market Here Are The Rare HDB Flats With Unblocked Views That Hardly Come Up for Sale
Pro Where HDB Flats Continue to Hold Value Despite Ageing Leases
Property Market Commentary What A Little-Noticed URA Rule Means For Future Neighbourhoods In Singapore
Editor's Pick We’re Upgrading From A 5-Room HDB On A Single Income At 43 — Which Condo Is Safer?