| Project: | The Sen |
|---|---|
| District: | 21 |
| Address: | 222, 224, 226, 228, 230 Jalan Jurong Kechil |
| Tenure: | 99-year Leasehold from 20 Jan 2025 |
| No. of Units: | 347 Units |
| Site Area: | ~207,156 sq ft |
| Developer: | SL Capital |
| GFA Harmonised? | Yes |
| TOP: | Est. Q2 2029 |
In a year where most RCR launches have crossed the $2,400 psf mark, The Sen stands out for a different reason: its pricing sits noticeably lower. One-bedders start from $993K (or $2,199 psf), and three-bedders from $1.936 million (or $2,220 psf), figures more commonly seen in the OCR than in the city fringe.
That positioning is reflected in the land rate as well. The Jalan Jurong Kechil plot was acquired by Sustained Land for $278.9 million (or $841 psf ppr), making it the lowest RCR land rate of 2025, and even below several OCR sites this year.
The trade-off comes in the form of convenience. There’s no MRT within walking distance, and daily amenities aren’t as immediate as most RCR buyers might expect. But what you do get is a quieter environment, larger grounds, and more greenery. For example, you have four parks within reach and full facilities on site. For buyers who prioritise space and surroundings over direct connectivity, the overall package may be more compelling than its location suggests.
It won’t suit everyone, but it may resonate with buyers who value liveability over connectivity.
Let’s take a closer look.
The Sen Insider Tour
The name “The Sen” stems from “森” (the Chinese character for “forest”), though the developer later evolved it into “Sen,” a nod to the Japanese concept of Zen.
The connection isn’t coincidental.
Designed by an architect who lives in the neighbourhood himself, the project draws from what residents here would probably value most: space, stillness, and the calm that comes from being surrounded by nature.

Since I had a bit of time before visiting the show flat, I decided to drop off at Verdale and take a short stroll over to get a better feel of the neighbourhood. The Sen’s show flat sits on the actual site itself, which makes the walk a nice prelude to what living here might feel like.
Along the way, I passed the empty plot right beside it, which is another GLS site that hasn’t been launched for bidding yet. Currently, it feels like it’s landmarked by this huge tree.

If you’re there, you might also want to walk along Old Jurong Road, which forms the boundary between The Sen and Bukit Batok Nature Park, just to get a sense of the traffic. In my experience, the road itself was fairly quiet (at least at 10 a.m.), with the occasional bus rolling by, but otherwise it felt calm.
Along the way, I passed a few hikers heading towards the park, which would be the natural draw of living in this area (despite the inconvenience).

The Sen sits between Bukit Batok Nature Park and a low-rise landed enclave, giving it a noticeably greener backdrop than most RCR projects.
A quick look at the URA Master Plan shows several large reserve sites nearby, along with the empty plot right next door (shown above), which is already zoned for residential use. While the area feels peaceful today, it’s fair to expect more activity here over the next few years as new projects come in.
That said, units facing Bukit Batok Nature Park will likely retain their greenery views for the foreseeable future. Still, as with most views in Singapore, it’s best to enjoy them while they last, as the Master Plan will, of course, evolve.
You will also note that the plot ratio of The Sen is at 1.6, which allows for higher floors to be built as compared to the surrounding developments at 1.4. So there is some advantage here to look at the higher floors, in an area that is generally very low-lying.

On the note of the show flat’s location, we were told it actually sits right where the tennis court will eventually be. So, that’s a fun little detail that helps you picture how the final layout might feel once everything’s built.

Here’s a look at the scale model from the top view.
The Sen comprises five 10-storey blocks built above a single basement car park. As part of the tender requirements, the developer will also include an Early Childhood Development Centre within the grounds, which would be a welcome touch for young families.

And here’s the site map.
Blocks 222, 228 and 230 each have nine units per floor, served by three lifts. That’s a little on the denser side, so lift waiting times might be slightly longer, but I doubt that this will be a dealbreaker given that there aren’t that many floors. Plus, these blocks mainly house the smaller unit types.
Meanwhile, Blocks 224 and 226 are designed as point blocks, with only two lifts serving each floor. These are where the larger units are located, so they’ll naturally feel a bit more private and exclusive.
The plot itself spans about 207,000 square feet and takes on a squarish shape which usually makes site planning more efficient. Here, the blocks are lined up in two neat rows, with the main landscaping and pool area running through the centre.

All things considered, the landscaping makes efficient use of the site. Based on estimates, this works out to around 597 sq ft of common space per unit, which is generous, especially for an RCR project. It’s rare to see this kind of breathing space today, and it aligns well with the lifestyle that The Sen is trying to create.
For context, Penrith offers about 222 sq ft of common space per unit, and LyndenWoods around 363 sq ft. Over in the OCR, Faber Residence comes in at roughly 700 sq ft, while Springleaf Residences offers about 366 sq ft.
So while The Sen isn’t quite as sprawling as some OCR projects, it sits on the more generous end of the scale and that’s saying something for a site in the RCR.

Architecturally, The Sen is designed by AGA Architects and it’s a familiar name for Sustained Land. They’ve worked together on several projects in the past, including Coastline Residences, 3 Cuscaden, and Sturdee Residences. For context, these projects are in more convenient locations and much nearer to the MRT, so this new project is a departure from their previous crop.
Besides the location, the concept is quite different from their previous developments too. It draws from a Balinese resort aesthetic, so think warm, natural tones and a quiet sense of retreat. The architect, who actually lives nearby, wanted to capture the essence of what makes this pocket of Bukit Timah so distinct: its calm, greenery, and slower rhythm.
The façade mixes bronze and stone tones for a grounded, organic look, while the landscaping borrows cues from Bali’s terraced fields, using layered elevations to create depth and movement. Together, they frame a lifestyle that’s less about spectacle and more about stillness.
We’ll see more of how that plays out in the landscaping later on.

There’s just one ingress and egress for The Sen, located along Jalan Jurong Kechil, which is a fairly quiet road for now. Given that the development has under 350 units, a single access point feels reasonable.
At present, the road mainly serves the surrounding condos and the nearby landed enclave, so traffic flow is still manageable. That said, as more residential plots in the area get developed, it’s something worth keeping an eye on.

Upon entering the development, you’ll notice two separate drop-off points past the guardhouse: one on the left for the Early Childhood Development Centre (ECDC), and one on the right for residents and visitors.
It’s a useful layout that should help to ease congestion at peak hours and make the arrival experience feel a little more private. You don’t often see this in mid-sized projects, so it’s a nice detail. A similar setup exists at Grandeur Park Residences in Tanah Merah, and residents there have mentioned how practical it’s been day to day.

A closer look at The Sen’s drop-off foyer reveals a simple roundabout anchored by a feature tree at its centre, with a waterfall backdrop that adds a touch of calm and a more elevated sense of arrival.
On the other hand, residents will head down to the basement for parking.

Parking is fully basement, with 347 lots for 347 units, which is a 1:1 ratio that makes sense, given The Sen isn’t within walking distance of an MRT station.
Out of these, 10 are EV charging lots. On top of this, there are also 4 accessible lots and 1 motorcycle lot. The childcare centre also has two dedicated lots located just outside its entrance.

On this note, accessibility isn’t The Sen’s strongest suit. It isn’t within walking distance of any MRT stations. And from what we understand, there won’t be a shuttle bus service either.
That said, there’s a bus stop located right outside the development, with routes that connect directly to nearby MRT stations and key amenities, so daily commutes shouldn’t be too much of a hassle if your travel is less dependent on the MRT.

The facilities begin right from the drop-off foyer, where you’ll find an elevated deck that houses the gym, steam room, and interestingly, a hot and cold bath. As someone who loves a good onsen or cold plunge session, this feels like a thoughtful touch for a wellness-themed development.
From this vantage point, you’ll also get a nice view overlooking the central landscaping and pool.

Now, let’s move to the heart of The Sen, featuring the 50-metre lap pool and the cluster of facilities that frame it. Surrounding the pool are the usual suspects: a pool deck, open lawn, and a few sculptural and lounge elements that help soften the space. They’re not headline amenities, but they do add to the sense of calm the development is going for.
From this angle, you can also see how the landscaping cascades down in tiers, much like the rice terraces in Bali, a deliberate nod to the project’s Balinese, wellness-inspired theme.
For a development with just 347 units, it’s good to see that The Sen still manages to offer a complete suite of facilities which we’ll take a closer look at next.

On the lower tier of the landscaping, just beside the main pool, is the children’s pool.
It’s a smaller, more minimalist setup than what you might find in larger developments, but it does the job. The area also has its own pool deck and overlooks an open lawn, which is a nice touch that gives kids a bit of space to run around after a swim. If anything (while it is in keeping with the overall look of the development) you don’t get any playful elements or colour that one might associate with a facility for kids.

Close by is the children’s playground, paired with a play pavilion, and is a thoughtful addition for parents or caregivers who’d prefer to stay shaded while keeping an eye on the little ones.

The Play Lawn and Taichi Lawn are located nearby as well, though these aren’t really amenities in the traditional sense and are more open spaces than anything else.

There’s also an outdoor fitness area for residents who prefer exercising in the open, or just want an alternative to the indoor gym.

Other than the children’s and lap pools, there’s also a family pool, which is a more relaxed option for those who just want a casual dip. It’s squarish in shape and comes with a few nice touches like a spa bed, aqua gym, spa seats, and a hydro pool.
Nothing over the top, but it rounds out the pool offerings nicely for a development of this size.
The BBQ Pavilion is located nearby too, which makes this corner perfect for family gatherings or an easy poolside get-together.

Located nearby are the Gathering Lounge and Recreational Lounge, both tucked beneath the elevated lap pool. It’s a smart use of space as by lifting the pool, they managed to fit in more communal areas without crowding the landscape.
The added bonus? These lounges are naturally sheltered, so they stay functional rain or shine.

And right at the corner, you’ll find the tennis court, which, as I mentioned earlier, sits exactly where the show flat is currently located.
It’s nice to see a full-sized court included here; Verdale next door has one too, and it fits the lifestyle-centric angle that The Sen is clearly going for.


To make full use of the space, there’ll also be rooftop amenities spread across three blocks (222, 228, and 230), each with its own theme.
From what we’ve heard, Block 222 will take on a fitness focus, with features like a Pilates Pavilion and Yoga Deck. Block 228 will be more of a garden lounge, designed for quiet relaxation, while Block 230 will house a sheltered bar pavilion and a few seating areas for evening hangouts.
Building above ground usually adds cost on the developer’s end, so it’s a nice touch that they’ve committed to extending the experience to some of the rooftops.

And before we wrap up the model tour, there’s one small detail worth mentioning: the shallow table near the entrance. It’s set up almost like a Lego-style model, complete with mini versions of the different floorplans and furniture, showing how residents might play around with the space.
It’s technically meant for kids, but honestly, I think most adults will find themselves just as entertained.
And with that, let’s move on to the show flat tours.
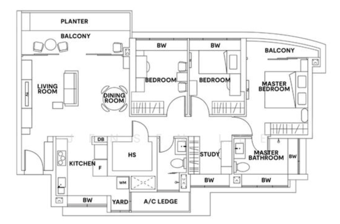
The Sen – 2 Bedroom Type B1-P (63 sqm/678 sq ft) Review

The Sen has a total of 167 two-bedroom units, making up nearly half the development (48.1 per cent). These are split between the standard 2-bedroom layouts (678 or 732 sq ft) and the 2-bedroom + study types (764 or 775 sq ft), offering a good range of options for buyers across different budgets and needs.
It is surprising to see the concentration of 2 bedders here given the location, and the recent trend of the bigger units like 3 and 4 bedders moving more quickly than the smaller unit types.
What’s notable here is size. The entry-level 2-bedder starts from 678 sq ft and is larger than most new launches today. It makes for a more comfortable and liveable layout, though naturally with a slightly higher overall quantum.
The show flat features this 678 sq ft unit, which comes with a traditional hallway layout and a fully enclosed kitchen, something many will appreciate. Both bathrooms are naturally ventilated, which is always a plus point for daily comfort.
As for the material choices, the living areas come with homogeneous floor tiles, while the bedrooms feature engineered timber flooring which is a notch above the vinyl that’s common in newer projects.
The Sen is also built using the Advanced Precast Concrete System (APCS), which allows certain walls to be hacked and this offers more flexibility than the typical PPVC construction.
Another highlight is the ceiling height. The show flat showcases the 3.9-metre ceiling (available only on the 1st and 10th floors), which really enhances the sense of space. The rest of the development will have the standard 2.85m height, which is still in line with today’s standards. The extra height is not chargeable, so buyers lucky enough to secure these floors will get that added volume at no additional cost.

Stepping into the unit, you’re first greeted by a long hallway that leads past the enclosed kitchen before opening up to the main living area.
You might, like me, notice that there’s quite a bit of corridor space in this unit type.
Some buyers might see that as inefficient, but it is also one of those things that can come down to preference.
Similarly, foyers tend to divide opinion. Some would rather do away with them altogether to maximise the living area (especially in a compact unit), while others value the buffer it provides between the entrance and the rest of the home.

Next up, the enclosed kitchen and for a 2-bedder, this one really punches above its weight.
At roughly 6 sqm, it’s comfortably sized and well planned. The double-counter layout keeps everything within easy reach, and the space still feels open enough that you won’t be bumping elbows while cooking.
The real star here is the window. Natural ventilation is something we rarely see in compact layouts these days, and it instantly makes the space feel brighter, fresher, and far more usable, especially if you cook often.

On one side of the kitchen, you’ll find the freestanding SMEG fridge alongside the cooking zone, complete with built-in cabinetry. As part of the standard provisions for all 2-bedders, you’ll also get a built-in oven, cooker hood, and induction hob; all from SMEG.
While the cooking area itself isn’t huge, the amount of countertop space feels generous enough for everyday use. The counters are finished in sintered stone which are known to be durable, scratch-resistant, and easy to maintain. So, it’s reassuring for anyone who spends real time in the kitchen.

Opposite that is the washing and prep area, where you’ll find the washer-cum-dryer, a sink from Franke, and mixers from Roca.
The cabinetry here ties in seamlessly with the rest of the space, and again, the countertop size deserves mention; most would find it generous for a 2-bedder.

Moving on, the main living area combines both the dining and living spaces into one open layout.

Including the foyer, the combined living and dining area spans around 22 sqm. It’s not a large space by any means, but it still feels well-proportioned and functional. The layout allows for a decent-sized dining set and a compact sofa arrangement without feeling overly tight.
A ceiling fan is provided as standard here, though buyers can choose to opt out of it if they prefer a sleeker look. And as mentioned, the show flat also features the higher 3.9m ceiling height, though this is available only for units on the first and tenth floors, and it does make a noticeable difference in how spacious the room feels.
For all other floors, ceiling height will be 2.85m, which is still normal by today’s standards but worth keeping in mind when visualising the space.

Here’s a look at the dining nook, which the IDs have styled with a booth seating setup and pull-out chairs, which is a familiar set up we’ve seen in many new launches today.
It’s an efficient use of space, but even without the built-in bench, a standard four-seater dining set would still fit comfortably here. When the chairs are pulled out, they don’t eat too much into the walkway either so that’s a plus point on liveability.

The living area is decently sized for a 2-bedder. It fits a three-seater (or even a compact four-seater) sofa comfortably, along with a small coffee table and a slim TV console.

The living area extends out to a 5 sqm balcony with a squarish layout which is fairly standard for a 2-bedder.
It’s enough for a small café table or a pair of lounge chairs, but anything larger might start to crowd the space. All balconies (and PES units) come with an electric point, though no water point is provided.
While it isn’t shown in the show flat, buyers will have the option to install either a motorised outdoor blind or a sliding aluminium screen (which, I’m sure, is something most will appreciate).


Next, let’s move on to the bedrooms. One thing you’ll notice with this layout is the longer hallway leading in.
Some might see it as less efficient, but it does help to create a stronger sense of privacy for the bedrooms.

Common Bedroom 2 comes in at 8 sqm. This is fairly standard for most new launches today, though the added ceiling height here does make it feel more spacious than it looks on paper.

All common bedrooms can fit a queen-sized bed, though the IDs have opted for a single bed here, paired with a simple bedside table and the standard built-in wardrobe with laminate finishing to better show the sense of space.
Do note, however, that the wardrobes come in a fixed height. For units with higher ceilings, this means you’ll get a small gap above the wardrobe: handy for storage if you make use of it, but otherwise, a magnet for dust.
As expected, the room also comes with a full-height window, keeping things bright and airy.

Next up is the common bathroom, which serves both guests and the second bedroom. At 4 sqm, it’s fairly standard for new launches, though it is a tad on the compact side.
The light-toned homogeneous tiles keep things bright, and the overall palette makes the space feel a touch larger than it is. You’ll find the usual built-in cabinetry and full set of bathroom fittings (e.g. wall hung WC, basin and mixers) from Roca.
What’s a little unexpected is the inclusion of a rain shower. That’s something you’d normally see only in master bathrooms, so it’s a nice touch of luxury that is consistent throughout the home.
The best part is that there is also a window for natural ventilation, which is rare for a 2-bedder these days.

Finally, we arrive at the master bedroom, which opens through a short foyer before leading into the main sleeping area. You can tell the intent here: that little entryway helps create a sense of privacy, separating the bedroom from the rest of the home.

At 13 sqm, the master bedroom is not the largest even by new-launch standards, and you do feel it once the essentials are in place.
With a king-sized bed, two compact bedside tables, and the built-in wardrobe, circulation space is fairly tight. The added foyer probably contributes to this impression, so while it’s nice for privacy, but it does nibble into usable area.

That said, the room makes up for it with its sense of volume. The 3.9m ceiling height (for first and tenth-floor units) and double windows help the space feel brighter and more open than its numbers suggest.
One thing to note: the built-in wardrobes come in a standard height, so for units with higher ceilings, there’ll be a visible gap above. It’s the kind that’s easy to overlook until you’re dusting it every week later.
Still, the satin-finish wardrobes used here is a small step up from the laminated ones in the common bedroom, giving the master a slightly more refined touch.

To wrap up, we have the master bathroom. You’ll also find an additional window in the bedroom here, which is a practical touch that allows for natural light and ventilation.

The master bathroom measures 5 sqm, which is just slightly larger than the common bath and comes in a darker palette for contrast. Finishes are consistent, with homogeneous tiles used throughout.

You’ll find the usual fittings here: built-in cabinetry, a wall-hung WC, basin, and mixers from Roca, along with a rain shower.
There’s also a window for natural ventilation, which is worth highlighting. It’s not often you see a 2-bedder with this many windows in the areas that need them, and it does make a noticeable difference to day-to-day ease of use.
And with that, let’s move on to the 3-bedder tour.
The Sen – 3 Bedroom Type C3 (103 sqm/1,109 sq ft) Review

At The Sen, 3-bedroom units make up the second largest portion of the development, accounting for 37.5 per cent of the total unit mix with 130 units. The estimated monthly maintenance fees for the standard 3-bedder are $450, while the larger 3-bedroom + study units come in at $525 per month.
There are two types of 3-bedroom layouts to choose from: the classic 3-bedders, which come in sizes of 872, 936, and 1,109 sq ft, and the larger 3-bedroom + study units, which is a whopping 1,259 sq ft.
The show flat features the 1,109 sq ft version of the classic 3-bedder. It’s got that traditional hallway layout, with a wet kitchen tucked away from the living areas, so I reckon that buyers will appreciate the separation between the cooking and living spaces. And depending on your needs or budget, you’ve got some good options to choose from here.
And when it comes to size, The Sen definitely offers more space than most new launches. For context, 3-bedrooms at places like Penrith, Zyon Grand, and Faber Residence are smaller, starting around 786 to 818 sq ft. So even the entry-level 3-bedder at The Sen, starting at 872 sq ft, feels more generous.
View-wise, the 3-bedder layout is only available in the internal-facing stacks. While you don’t get the lush greenery views of Bukit Batok Nature Park, you’re still looking out onto well-maintained internal landscaping. It’s quieter and more private, so for some, perhaps it’s a trade-off worth making.
In terms of finishes, the living areas come with homogeneous tiles, while the bedrooms feature engineered timber flooring. Again, it’s a small upgrade from the usual vinyl flooring you see in most new launches.
The Sen is also built with the Advanced Precast Concrete System (APCS), which means some of the walls can be hacked to suit your future design needs. This gives you a little more flexibility compared to the typical PPVC construction.
One more thing: the ceiling height. The show flat features units with a 3.9-meter ceiling (only available on the 1st and 10th floors). This makes the space feel much more open and airy. The rest of the development has a 2.85-meter ceiling, which is still great, but it’s worth noting the difference. And here’s the kicker: the extra ceiling height on the first and tenth floors comes at no additional cost, so if you’re lucky enough to get one of these units, you get that added sense of space for (technically) free.



As you enter the unit, you’ll be greeted by an L-shaped foyer. Now, I’ll admit it’s not the most space-efficient, but for a unit of this size, I think that it works.
What you’ll notice right away is the level of privacy this layout creates. It’s not the most open-plan design, and if, like me, you appreciate a bit of separation between spaces, this feature will likely be a plus.
When designed well, foyers like this can be practical, too. There’s just enough room for some compact carpentry, so it’s perfect for stashing shoes or creating a little catch-all space for daily essentials.
At the end of the day, foyers can be a bit divisive. Some people love them for the added sense of separation, while others might see it as wasted space. It really comes down to what works for you.

Step further in and you’ll find the wet kitchen on your left.
At 9 sqm, it’s decently sized and comes with a familiar double-counter layout, which is quite a staple for bigger layouts in new launches today.
With a window for natural ventilation, the space can also be fully enclosed if you prefer, which is practical for families who cook often and want to keep the fumes out of the living area.


On one side of the kitchen sits the fridge, with the washing and prep areas beside it. You get a freestanding Smeg fridge, a Franke sink, and Roca mixer, so all good-quality fittings that suit the price point.
The countertop is finished in sintered stone, so it’s hardy and scratch-resistant. There’s a decent stretch of space here too, enough for prep or a couple of small appliances if you really need them.
Storage is generous, with full-height cabinetry on both sides to keep things tucked away.
If I had to nitpick, the fridge does feel a little undersized for a unit of this size. A two-door option would’ve made more sense, but that’s just me being critical.

Across from that is the main cooking area, which comes with a full suite of Smeg appliances which includes a built-in oven, cooker hood, and gas hob, so you get a complete, cohesive set.
Like the opposite side, the countertop here is finished in sintered stone, and there’s a good amount of workspace to move around. Combined with the cabinetry above and below, it feels like a practical, well-thought-out kitchen.
You’ll also notice a glass panel above the counter, which helps bring more light into the space and keeps the kitchen visually connected to the living area. It’s a nice touch, though it’s worth noting that this is an ID addition; the actual layout comes with full-height built-in cabinetry instead.

You can see the original setup in the photo displayed at the showflat.
Without the glass, the kitchen would feel a little more enclosed and likely need stronger lighting. Still, the ID tweak shows how small design changes can really open up the space and make it feel lighter and more inviting.
But for those viewing the space, it’s good to keep this in mind.

The yard is tucked at the back of the kitchen, with a washer-cum-dryer from Smeg provided. Some might argue it’s not a “proper” yard, and that’s fair, but for a standard 3-bedder, having a dedicated space at all is already a plus.
What’s nice here is the L-shaped window. Instead of a single panel, you get two, which means better airflow and more light. To me, it shows that the developers have thought about how to make the space more practical for daily use. And if you prefer air-drying your laundry, this would be a good spot for it too.

The WC and home shelter are tucked in the corner at the end of the yard, which works well if you have a live-in helper and want a bit more privacy. Otherwise, it functions perfectly as a utility or storage space.
I also like that the WC, though just 1 sqm, comes with a window for natural ventilation which is not something you see often these days. It ties in with how the layouts here really try to maximise airflow and light wherever possible.

The home shelter, at 4 sqm, can fit a single bed comfortably.
However for this unit, the IDs have turned it into a home gym, which, unless my memory fails me, is the first I’ve seen in a show flat.


Now, let’s move on to have a look at the rest of the living area.

As mentioned earlier, this layout comes with a dry kitchen and it’s a nice touch if you entertain often or just appreciate having a bit more prep space.
Sized at 4 sqm, it features a simple double-counter setup finished in sintered stone.

The island is kept clean and practical, with drawers and cabinets for storage. It’s a good spot for smaller appliances or to double up as a serving counter when guests are over.

On the opposite side, you’ll notice the glass panel that opens up to the wet kitchen, though keep in mind that this is an ID addition.
The original configuration comes with full-height cabinetry instead. While that setup would naturally feel more enclosed, it does give you more storage and prep space, so it really depends on what you prioritise.


The dry kitchen opens up to the main living area. Altogether, the living, dining, and corridor spaces span 36 sqm, which is about average for a three-bedder today.
What stands out here is the 5-metre frontage, which gives the space a nice sense of width and openness. It’s the kind of layout that immediately feels more generous when you step in. Coupled with the 3.9m ceiling, most would agree that this is quite spacious for a 3-bedder.
And while it’s not shown here, the living room will come with a Crestar ceiling fan (though buyers can opt out of it). The open-plan setup also gives you flexibility on playing around with the spaces, so whether you prefer a larger dining area or a roomier living zone, the layout adapts quite easily.

If you stick to this layout, the living area fits a three-seater sofa and a small coffee table comfortably. That said, there isn’t much room left for a TV console, so a projector setup might be the more practical option here.


Across from it is the dining area, where the IDs have placed a six-seater dining set and it fits nicely without feeling cramped.
Even with the chairs pulled out, it won’t encroach into the walkway space, so that’s a nice plus.

The balcony spans about 8 sqm, with a generous 5-metre frontage that matches the width of the living room. It’s a good, usable size, which is enough for a compact dining set or a pair of lounge chairs like what’s shown here, without making it feel cluttered.
There’s an electrical point but no water point, which is a shame. And as part of the standard provisions, buyers can either choose between a motorised outdoor blind or a sliding aluminium door.

Here’s a look at Bedroom 3, which comes in at 9 sqm. For context, both common bedrooms in this unit share the same size and have full-height windows, so there’s no real “better” room here.
You’ll also see the benefit of the APCS construction here. The wall that originally separated this room from the living area has been removed to create a more open flow, which is a nice option if you prefer flexibility in how you use your home, or want to extend your main living space.

The IDs have styled this as a study and lounge area, and with a writing desk, sofa, and the standard laminate built-in wardrobe, the room still feels comfortably spacious.
One thing to note: all wardrobes here come in a standard height. So, for units with the 3.9m ceiling, there’ll be a gap above the wardrobe. You could use it for light storage (e.g. luggage or boxes), though it’s worth mentioning that over time, heavier items might cause the wood panels to sag slightly. If left empty, though, it does tend to collect dust, so that’s something to keep in mind when planning your built-ins.

Right across from Bedroom 3 is the common bathroom, shared by guests and occupants of both common bedrooms. It’s sized at 5 sqm, which is fairly standard, and finished in a light, neutral palette with homogeneous floor and wall tiles.
In terms of fittings, you’ll find the usual built-in cabinetry, along with a basin, wall-hung WC, and mixers from Roca. A nice touch here is the inclusion of a rain shower, which is something you’d usually only see in master bathrooms, so it does add a bit of that premium feel.
There’s also a window for natural ventilation, which is always a plus.


And here’s a look at Bedroom 2, which, like the other common room, is 9 sqm. It also comes with full-height windows, and with the 3.9m ceiling height seen here, the space feels noticeably airier than your typical common bedroom.

The IDs have styled it with a single bed, writing desk, and the standard laminate built-in wardrobe to give a sense of proportion. That said, with the current setup, you can’t really use the desk and open the wardrobe at the same time without things feeling a little tight.
As with the other rooms, the built-in wardrobes come in one standard height. For units with higher ceilings, you’ll have a gap above which is handy if you’d like to tuck away light items, though left bare, it can easily become a dust trap.

And finally, we come to the master bedroom. It opens with a short foyer, which adds a nice sense of separation and privacy from the rest of the home.

You’ll also spot an extra window here, and it’s in line with what we’ve seen throughout the unit. The developers seem to be prioritising in maximising more windows overall, which is great for natural light and ventilation.

The master bedroom is 13 sqm, which, if I’m being honest, feels a little tight for a unit of this size. That said, the full-height windows and higher ceiling do help open up the space, making it feel a lot roomier than the numbers suggest. However, for the standard 2.85m ceiling height units, I reckon the space will feel a bit more hemmed in.

With a king-sized bed, two compact bedside tables, and even a small vanity tucked in the corner, the room already feels close to full capacity.
If there’s one gripe I have, it’s the wardrobe space. For a unit of this size, the standard built-in feels a little tight for two people. I imagine most buyers would feel the same.
That said, the finish here is a step up from the common bedrooms. The master comes with a satin glass wardrobe instead of laminate, which gives it a slightly more refined touch.


And finally, here’s the master bathroom, which is 5 sqm and the same size as the common bathroom. That’s a bit unusual, as master baths are typically roomier, so this one does feel on the compact side.
It takes on a darker colour palette for contrast, though the same homogeneous tiles are used for both the floor and walls. Fixtures are consistent with the rest of the unit: a basin, wall-hung WC, and mixers from Roca, along with a rain shower for that added touch of comfort.
There’s also a window here for natural ventilation, which is always a welcome feature.
The Sen – 4 Bedroom + Study Type D1A-P (135 sqm/1,453 sq ft) Review

The 4-bedders at The Sen make up 11.5 per cent of the development, with just 40 units in total.
Interestingly, there’s only one layout option here, sized at 1,453 sq ft, which is a decent jump from the next biggest unit, the 3-bedroom + study at 1,259 sq ft. Monthly maintenance fees are estimated at $525.
This layout checks most of the boxes for family living. All bedrooms come ensuite, there’s a junior master for multi-gen setups, a powder room for guests, and an enclosed kitchen, so all the features you’d expect from a home designed with larger households in mind.
The 4-bedders are housed in point-block configurations, which means greater privacy and cross-ventilation. Depending on which stack you pick, you’ll either face Bukit Batok Nature Park (naturally, the premium-facing view), or the internal landscaping.
Finishes here also take a step up. The living and dining areas are laid in compressed marble (compared to homogeneous tiles in smaller units), while bedrooms come in engineered timber flooring. Bathrooms and balconies retain homogeneous tiles.
As with the rest of the project, The Sen uses the Advanced Precast Concrete System (APCS), which gives a bit more flexibility for minor reconfigurations compared to typical PPVC builds.
And finally, ceiling height. The showflat showcases the 3.9-metre ceilings (exclusive to the first and 10th floors), which add a greater sense of space. The rest of the floors get the standard 2.85 metres, which is still respectable by today’s standards. The best part? Those higher ceilings come at no extra charge.

Stepping into the unit, you’re greeted right away by the dry kitchen, which is a bit of a surprise, considering that the smaller unit types come with some form of foyer, while the largest layout skips it altogether.
That said, privacy isn’t really an issue here. Since this is a point-block unit, you’re already more tucked away, and the line of sight doesn’t lead directly into the living area anyway.
There’s also enough space by the entrance to carve out a small shoe or drop-off area for everyday essentials, so that’s a practical touch that helps ground the simple entryway.

The dry kitchen overlooks the main living area (which we’ll get to in a bit) and is sized at about 5 sqm.
The setup is quite similar to what we saw in the 3-bedder: a pair of countertop surfaces with built-in drawers and cabinetry on both sides, creating a clean and practical workspace. The dry kitchen also flows neatly into the wet kitchen behind it, keeping the layout efficient and functional.
I do like that the main door opens directly towards the island, so it makes it a natural drop-off point for groceries or bags when you get home (so no more excuses for bags to be on the floor!)

On the flip side, this area also doubles up nicely for light cooking (late-night instant noodles, anyone?)
It’s fitted with a built-in cooker hood, induction hob, and steam oven from Miele, which is a step up from the Smeg appliances in the smaller units. So, a nice little perk for those opting for the larger layouts.
With the added cabinetry and sintered stone countertop space, it’s a practical setup for casual hosting or quick prep work.

The other half of the dry kitchen is where you’ll find the main island, which is essentially a solid prep table with storage built into the base. It also comes with a mini wine chiller from Miele, which feels like a fitting touch for a space like this.
It’s a nice spot to prep food or chat while keeping an eye on the living area, and the sintered stone countertop ties it all together.

Moving on, we have the wet kitchen which is sized at a generous 11 sqm space laid out in an L-shape. It’s a configuration we’ve been seeing quite a bit of in larger units lately, such as Penrith, Zyon Grand, and now The Sen.

On one side, you’ll find a two-door Miele fridge, which is a nice step up from the single-door Smeg we saw in the smaller units.
It’s a practical upgrade too, especially for a home meant for families, that extra storage just makes sense.

On the other side is where all the cooking, prepping, and washing happens; laid out neatly along an L-shaped counter. The first thing you’ll notice is the amount of countertop space. It’s generous, practical, and actually usable. The surface is finished in sintered stone, which is both durable and scratch-resistant, so it’ll hold up well to daily use.
Storage is another strong point here. There’s plenty of built-in cabinetry to tuck away your appliances and pantry items, which helps keep the space feeling clean and uncluttered. And when you add the extra storage from the dry kitchen, most families should have more than enough room (unless you’re one to hoard, of course).
In terms of fittings, you get a full set from Miele, including a built-in oven, cooker hood, and gas hob, which rounds things off nicely.

The other side of the “L” kitchen is where the washing takes place, and it essentially doubles up as the yard area. You’ll find a sink from Franke with a mixer from Roca, and the washer-dryer from Miele is provided here as well.

I did expect to see a fully separate yard for a 4-bedder + study, but this open configuration can still work for most households.
I would’ve liked to see a bit of built-in storage here (that would’ve made the space feel more complete), but at least there’s a window for natural ventilation, whether to air out the kitchen after cooking or to help dry your laundry.

Right at the end of the kitchen, you’ll find the WC and home shelter. If you have live-in help, this corner works well as a private space for her. Otherwise, it’s still a useful area for washing up or tucking away household items.
The WC is compact at 1 sqm but comes with a surprisingly large window for ventilation.

Across from it is the home shelter, sized at 4 sqm. It’s big enough to fit a Murphy bed if you plan to use it as a helper’s room. In the showflat, though, the IDs have styled it as a walk-in pantry.

Now, let’s move on to have a look at the main living area.

This layout feels familiar as it mirrors the 3-bedder we saw earlier, with the dry kitchen flowing into the living and dining area in a landscaped format.
The main difference is the width. Here, the frontage stretches to 5.8 metres, giving the space a broader view, either of Bukit Batok Nature Park (if you’re lucky enough to face that direction) or the condo’s internal landscaping.
It’s not the widest you’ll find in the market, but it’s wide enough to make the view feel open and generous.
Altogether, the living, dining, and entrance areas come in at 38 sqm, which is about average for new launches today. Coupled with the 3.9m ceiling height, most buyers would feel impressed by the sense of space. However, do note that the higher ceiling heights are only for units located on the first and 10th floor; the other levels are only 2.85m high.
On another note, I like that it’s kept open-concept; it gives homeowners flexibility to decide what they want to prioritise. Some might prefer a larger dining setup, others a more lounging-focused living area, so this layout lets you choose.
And as with the other unit types, a Crestar ceiling fan is included as standard, though buyers can opt out if they prefer their own fittings.

If you keep to the layout shown here, the living area can comfortably fit a three- or even compact four-seater sofa, and it still feels fairly spacious.
That said, do note that there isn’t much room left for a TV console. So if you’re one who prefers a traditional setup, you might have to get creative.


On the other side of the living room is the dining area, which the IDs have styled with a six-seater booth setup. It’s a neat way to keep things compact, but if built-ins aren’t your style, a regular dining table would fit comfortably here too. Even with all the chairs pulled out, there’s still enough room to walk around without feeling squeezed.
Before we move on to the balcony, it’s worth pointing out that the 4-bedder units come with ducted air-conditioning, something you’d usually see in more high-end developments.

Naturally, the balcony here is the largest among all unit types at The Sen. Spanning 10 sqm with a 5.8m frontage across the living and dining areas, it’s a generous space and large enough to shift your dining set outdoors if you’d like to free up more room inside.
There’s an electrical point provided, though no water point, which is a bit of a miss especially given the likelihood of plant-loving owners in such a development. As part of the white goods provided, buyers will also have the option to install either a motorised outdoor blinds or aluminium sliding doors.
Do note that homogeneous floor tiles are used here (and not the compressed marble!)

Next, let’s move on to have a look at the rest of the bedrooms and bathrooms.

Guests will use the powder room here, which is sized at 3 sqm and fully tiled. The marble-effect tiles give it a more polished look. A powder room is also a thoughtful inclusion overall, as it keeps the main bathrooms private for the owners.
Here, fittings include a basin and wall-hung WC from LAUFEN, and there’s a window here for natural ventilation.

Next, here’s a look at common bedroom 3, which is sized at 9 sqm and is the same as bedroom 2, so no arguments over who gets the “better” room.
With the 3.9m ceiling and full-height window, the space feels taller and brighter than the numbers suggest. It also has a Jack-and-Jill connection to the common bathroom (not shown here), effectively making every bedroom ensuite, which is a nice touch for family living.

You can also see the benefits of the APCS structure here. The IDs have knocked down half the wall to merge the common bedroom with the living area, showing how flexible the layout can be if you prefer a more open concept. In this version, it’s styled as a family room, and even with the booth seating, table, and built-in wardrobe, it still feels comfortable.
For the 4-bedrooms, wardrobes get a small upgrade with satin glass finishes instead of the standard laminate, which adds a bit more polish.
That said, all wardrobes come in the same height, so for units with the 3.9m ceiling, you’ll notice a gap above the wardrobe and ceiling. It’s handy for light storage if you must, though realistically, it’s the kind of space that tends to collect dust over time.


Here’s a look at the common bathroom, shared between bedrooms 2 and 3.
It’s sized at 4 sqm and it’s just slightly larger than the powder room, so it does feel a little compact, though still practical for daily use. On one side, you’ll find the sink, wall-hung WC, and built-in cabinetry.
Fixtures are from LAUFEN, with mixers from Roca, so you’ll get a reliable and decent-quality pairing that’s in line with what we’ve seen throughout the project.

The other side houses the walk-in shower, which also comes with a rain shower and is a nice touch that’s usually kept for master bathrooms.
I like that the wet and dry areas are clearly separated here; it just makes day-to-day use a lot more practical. There’s also a window for natural ventilation, which, while small, makes a world of difference in keeping the space fresh.

Next, we move on to common bedroom 2, which also has direct access to the shared bathroom and is sized at 9 sqm.

Like the other bedrooms, it comes with a full-height window, and when paired with the 3.9m ceiling, the room feels bright and airy.
The IDs have clearly leaned into the height here. The built-in loft bed with a study nook below makes full use of the vertical space. I’m about 1.7m tall, and I could comfortably stand by the desk without having to duck, so that’s a smart use of proportions.
As with the other rooms, a standard built-in wardrobe is provided.

And here’s the study and it’s at 5 sqm, it’s decently sized and, in my opinion, hits all the right notes for what a study should be today.

There are a few things that caught my attention.
First, the full-height windows. You don’t see that often in a study; most tend to be facing a wall and would need artificial lighting. So, this one feels bright, open, and genuinely pleasant to work in. Second, the size gives you options as to how you’d want to use the space. It can easily fit a desk and some shelving, or even double as a guest room with a single bed if needed.
Due to the APCS method, I also appreciate that it can be enclosed or kept semi-open like this for flexibility, depending on how you want to use it.

Next, we move on to the junior master bedroom. Interestingly, it sits right across from the main master which isn’t the most common layout.
Usually, the junior master is tucked further away for added privacy, so this arrangement does stand out a little.

Sized at 9 sqm, the junior master is interestingly the same size as the other common bedrooms, though its main perk is, of course, the attached ensuite bathroom (which we’ll get to in a bit).
It’s a little unusual, since junior masters are typically a touch larger to set them apart, but the higher 3.9m ceiling here helps the room feel more generous than it really is.

You’ll also get full-height windows, which keep the space bright and airy. The room fits a queen-sized bed comfortably, with enough room for two compact bedside tables and a two-panel built-in wardrobe. The wardrobe here gets a slight upgrade with a satin glass finish, which is a nice step up from the standard laminate ones in the smaller unit types.

For the higher-ceiling units, though, do note there’ll be a visible gap between the wardrobe and the ceiling since it’s designed for the standard 2.85m height.
You could use it for light storage, but otherwise, it might just end up being another spot for dust to gather.

And here’s the ensuite bathroom for the junior master, which is sized at 5 sqm and is slightly larger than the common bathroom. It carries the same light-toned palette, fitted with homogeneous wall and floor tiles, keeping the look consistent across the home.
Fittings here include a wall-hung WC and basin from LAUFEN, with mixers from Roca, while a rain shower adds that extra premium touch usually reserved for master suites.
There’s also a window for natural ventilation, which is great to see.

And finally, we end the tour with the master bedroom, which opens up into a short foyer; just enough to create a sense of privacy before entering the main space.

It’s not an entirely wasted corridor either; the developers have made good use of the wall space with built-in shelving for extra storage.
You could also use it to hang accessories or add a slim console table, as the IDs have done here, so that makes the entryway feel a bit more functional.


The master bedroom comes in at 16 sqm, which for a master bedroom is not considered huge, but still comfortably sized. The full-height windows and 3.9m ceiling do most of the heavy lifting here, giving the room a nice sense of volume.
There’s even space to tuck a small vanity into the corner.

The master bedroom comes with a five-panel walk-in wardrobe finished in tinted glass finishing, a noticeable step up from the standard sliding wardrobes found in the other bedrooms, and much more comfortable for two.


This leads into the master bathroom, which is sized at 6 sqm. The main highlight here would be the two windows, which is a rare feature that makes a difference in ventilation and light, as well as space for his-and-hers sinks. The fittings are consistent with the rest of the home: a wall-hung WC and basin from LAUFEN, mixers from Roca, and a rain shower for that finishing touch.
And with that, we wrap up the insider tour of The Sen.
The Sen Location Review
The Sen sits in a pocket of Jalan Jurong Kechil that you’ll either really like or not take to at all.
Tucked just off Old Jurong Road, it occupies a quieter stretch between the Bukit Batok and Upper Bukit Timah precincts. It’s not the polished part of Bukit Timah that most people picture; instead, it’s a greener, lower-rise pocket that feels a touch more laid-back and lived-in. Bukit Batok Nature Park sits just across the road, while Bukit Timah Nature Reserve is a short drive away so it’s very much a setting where nature takes centre stage.
That tranquillity, however, comes with some trade-offs. The Sen isn’t within walking distance of an MRT station. It sits roughly midway between Hume and Beauty World MRT Stations (both on the Downtown Line), about 1.3 km in either direction. There’s a bus stop right outside the project that connects you to both stations within a few stops, but if you’re used to door-to-door connectivity, you’ll probably find yourself driving more often than not.
For drivers, though, it’s convenient enough. The PIE and BKE are both within easy reach, putting Jurong, Bukit Timah, and the city centre all within 20 minutes in good traffic.
In terms of daily needs, you’ll likely head to Beauty World or Bukit Timah Plaza for groceries and dining, while HillV2 and The Rail Mall are just a short drive away. It’s not a “walk to coffee” neighbourhood, but everything you need is within a 5- to 10-minute drive (a compromise that nature lovers might find to be fair).
That said, change is coming. The empty site directly beside The Sen has already been earmarked for future housing, and several nearby plots have been marked as Reserve Sites. Even so, given the proximity to Bukit Timah Nature Reserve and park buffers, the general character of the area should stay. The greenery and unblocked views facing Bukit Batok Nature Park are unlikely to change soon.
In terms of schools, The Sen falls within 1 km of Bukit Timah Primary School, while Pei Hwa Presbyterian is likely just outside the radius. For families with older children, institutions such as Ngee Ann Polytechnic, Singapore Polytechnic, and NUS are within an easy drive.
Nearest MRT:
- Hume MRT Station, DTL (1.3km, 19-min walk)
- Beauty World MRT Station, DTL (1.4km, 19-min walk)
Schools

| School | Distance from Condo |
| Bukit Timah Primary School | Within 1km, 4-min drive |
| Pei Hwa Presbyterian Primary School | Within 2km, 8-min drive |
| Methodist Girls School | Within 2km, 11-min drive |
| Hillgrove Secondary School | 2.9km, 8-min drive |
| Bukit View Secondary School | 2.9km, 7-min drive |
| Nanyang Girls High School | 4.6km, 11-min drive |
| SUSS / SIM Global | 3.1km, 8-min drive |
| Ngee Ann Polytechnic | 3.2km, 9-min drive |
| National Junior College | 5.5km, 13-min drive |
| Hwa Chong Institution | 7.1km, 15-min drive |
| National University of Singapore | 6.2km, 13-min drive |
| Wise Oaks International | 1.4km, 4-min drive |
Shopping Malls
| Destination | Distance from Condo (& Est. Driving Time) |
| Beauty World Centre | 1.6km, 5-min drive |
| Beauty World Plaza | 1.7km, 5-min drive |
| The LINQ @ Beauty World | 1.8km, 7-min drive |
| Bukit Timah Shopping Centre | 1.9km, 6-min drive |
| Bukit Timah Plaza | 1.9km, 6-min drive |
Private Transport
| Key Destinations | Distance from Condo (Fastest Time at Peak Hour [0830] Drive Time) |
| Jurong Cluster | 5.8km, 10 – 35-min drive |
| Mediapolis (and surroundings) | 10.4km, 16 – 40-min drive |
| Orchard Road | 11.7km, 18 – 45-min drive |
| Mapletree Business City | 13.6km, 22 – 50-min drive |
| Woodlands Cluster (Causeway Point) | 15.9km, 18 – 45-min drive |
| Harbourfront Cluster (VivoCity) | 16km, 22 – 50-min drive |
| Paya Lebar Quarters | 17.4km, 22 – 55-min drive |
| Suntec City | 18.4km, 24 – 55-min drive |
| CBD (Raffles Place) | 20.1km, 28 – 65-min drive |
| Tuas Checkpoint | 21.4km, 22 – 40-min drive |
| Punggol Cluster (Waterway Point) | 26km, 28 – 55-min drive |
| Changi Airport | 26.5km, 26 – 55-min drive |
| Tuas Port (by 2040) | 30.7km, 35 – 65-min drive |
Immediate Road Exits: Turn left onto Jalan Jurong Kechil, which will take you onto Toh Tuck Road and the PIE. Alternatively, you can exit onto Clementi Avenue 6.
Unit Mix
| Unit Type | Est. Size (SQFT) | Total Units | Unit Breakdown | Est. Maintenance Fee |
| 1 Bedroom | 452 | 10 | 2.9% | $375 |
| 2 Bedroom | 678 / 732 | 110 | 48.1% | $450 |
| 2 Bedroom + Study | 764 / 775 | 57 | ||
| 3 Bedroom | 872 / 936 / 1,109 | 90 | 37.5% | |
| 3 Bedroom + Study | 1,259 | 40 | $525 | |
| 4 Bedroom + Study | 1,453 | 40 | 11.5% | |
| 347 | 100% | |||
The Sen offers 1- to 4-bedroom units, with a clear focus on 2-bedders that make up nearly half the development (48.1 per cent, to be exact). It’s also a post–GFA harmonisation project, meaning air-con ledges are excluded from the stated floor area, so layouts here should feel a little more generous and efficient.
At first glance, that breakdown might look investor-leaning (which, given its “lowest RCR entry” angle, makes sense). But the actual unit sizes tell a different story.
Take the 2-bedders, for instance. The entry layout starts from 678 sq ft, which is already sizeable by today’s standards. For comparison, the smallest 2-bedder at Springleaf Residence measures just 527 sq ft. The largest 2-bedder at The Sen goes up to 775 sq ft, roughly the size of a compact 3-bedder in newer OCR projects.
That alone gives a clue to who this project is really meant for. Despite the price positioning, The Sen feels more own-stay than investor-driven. The layouts are practical and well-proportioned, and it shows. Some 2-bedroom units come with enclosed kitchens with windows for natural ventilation, while all bathrooms are naturally ventilated as well.
Interestingly, about 75 per cent of all units here have at least one bathroom with a window. On a typical nine-unit floor block, six enjoy this feature, which is impressive compared to nearby developments like Faber Residence. Even the middle stacks, which usually lose out on ventilation, have managed to score one windowed bathroom each.
The 3-bedders make up about 37.5 per cent of the mix, and this is where The Sen really leans into family living. Sizes range from 872 to 1,109 sq ft, while the 3 + Study units go up to 1,259 sq ft; larger than some 4-bedders in newer launches.
Certain layouts feature landscaped frontages that offer a wider sense of space and better views. For comparison, the largest 3-bedder at Faber Residence and Springleaf Residence are 1,033 sq ft and 1,076 sq ft respectively, so The Sen sits comfortably on the more spacious end.
The Sen Stack Analysis
Site Plan

Afternoon Sun

Best Stacks

With five blocks spread across the site, buyers at The Sen get three distinct orientations to choose from.
The most coveted will likely be the north-west facing stacks that look towards Bukit Batok Nature Park along Old Jurong Road. In today’s market, unblocked greenery views are increasingly rare, so these will naturally carry a premium. Based on the 2025 Master Plan, The Sen sits right at the fringe of the park, making it one of the few developments that can genuinely claim park-front views for the foreseeable future. Unless zoning changes, that view corridor should hold for quite some time. Two of the blocks here house the larger, more premium layouts, though there’s also one block of smaller units facing this direction, giving both upgraders and entry buyers a shot at those views.
Next are the inward-facing stacks. They overlook the internal facilities and landscaping with a distance ranging from 25 to 35m between blocks.
So, there should still be a decent sense of openness. These units will likely appeal to those who prefer a more cost-efficient entry point without compromising too much on privacy or afternoon sun exposure. Assuming the landscaping is executed well (and Sustained Land generally does this decently), the internal views should still feel lush and pleasant.
Finally, there are the south-east facing stacks that overlook the currently vacant plot beside The Sen. It’s worth noting that this plot has already been zoned residential under the Master Plan, with the same plot ratio, so a future development is almost certain. Once built, these stacks will likely face another mid-rise residential project of comparable height.
The Sen Pricing Analysis
If you’ve been following the 2025 launch slate, The Sen probably caught your eye for one reason: pricing.
Technically, it falls within the RCR. But in practice, both its land rate and launch prices lean much closer to OCR territory. With a land bid of $841 psf ppr, The Sen holds the title of the lowest RCR land sale in 2025, setting expectations for a relatively accessible entry point. A full price review will follow, but here’s a first look at how it shapes up.
At The Sen, indicative prices start from:
- 1-bedder: From $993,900 ($2,199 psf)
- 2-bedder: From $1.499 million ($2,212 psf)
- 3-bedder: From $1.936 million ($2,220 psf)
- Prestige units: From $2.899 million ($2,299 psf)
At these numbers, The Sen positions itself right beside Springleaf Residences, though its units are notably larger and its postcode technically RCR. On a per-square-foot basis, it’s entering at an attractive level given how 2025’s launches have been trending.
To put things in context, Faber Residence (which launched just weeks earlier) sold 86 per cent of its units at an average of $2,160 psf. Both are situated in the west, but their propositions are distinct: Faber leans on proximity to Nan Hua Primary and the established school belt, while The Sen trades that for greenery, larger unit sizes, and a quieter lifestyle.
At how things are going, The Sen would be able to find traction among buyers who prioritise value, tranquility and space.
Here’s how it compares with the other new launches:
| Project | Region | Land Bid ($PSF PPR) | Avg. Launch Price ($PSF) | Take-up Rate |
| The Sen | RCR | $841 | From $2,199 | – |
| Faber Residence | OCR | $900 | $2,160 | 86% sold |
| Springleaf Residence | OCR | $905 | $2,175 | 92% sold |
| Bloomsbury Residences | RCR | $1,191 | $2,474 | 25% sold |
| Nava Grove | RCR | $1,223 | $2,448 | 65% sold |
| Skye at Holland | CCR | $1,285 | $2,953 | 99% sold |
| Promenade Peak | RCR | $1,304 | $3,343 | 54% sold |
| The Orie | RCR | $1,360 | $2,704 | 86% sold |
Buyers today are less concerned with zoning labels (e.g. RCR or OCR) and more focused on whether the overall quantum is manageable to them.
In The Sen’s case, though, prices are likely to edge higher than Faber Residence and Springleaf Residence. While the psf figures are comparable, the larger unit sizes here naturally push up the overall quantum.
That makes The Sen less of an “entry product” and more suited for buyers who intend to stay for the long term.
Still, its land rate stands out as one of the lowest among recent GLS sites — even lower than OCR plots like Bayshore and Chuan Grove, both transacted at around $1,360 psf ppr.
Here’s how The Sen compares with its neighbours in the Jalan Jurong Kechil area:
| Development | Units | Average $PSF | TOP | Tenure | Price Gap |
| The Sen | 347 | $2,243 | 2029 | 99LH | – |
| The Linq @ Beauty World | 120 | $2,871 | 2024 | FH | +28% |
| 8@BT | 158 | $2,775 | 2027 | 99LH | +23.7% |
| Reserve Residences | 732 | $2,347 | 2028 | 99LH | +4.6% |
| Forett at Bukit Timah | 633 | $2,278 | 2024 | FH | +1.6% |
| View at Kismis | 186 | $2,086 | 2024 | 99LH | -7% |
| Daintree Residences | 327 | $2,045 | 2022 | 99LH | -8.8% |
| Verdale | 258 | $1,953 | 2023 | 99LH | -12.5% |
| Sherwood Condominium | 116 | $1,526 | 1998 | FH | -32% |
| The Hillford | 281 | $1,477 | 2016 | 60LH | -34.2% |
The closest comparable would be Verdale, located right next door with a similar unit count, tenure, and level of MRT accessibility. A look at its past transactions shows modest profits, and about what you may expect given the accessibility. Resale volumes have been low, but most sellers have walked away with profits, with three-bedroom units holding value best, a sign that the area’s demand is largely own-stay rather than investor-driven.
In that sense, The Sen will likely attract the same kind of buyer: someone who values space, greenery, and a slower pace, rather than those chasing short-term gains.
Projects like The Hillford and Sherwood Condominium are less comparable. The Hillford, Singapore’s pilot 60-year retirement project, mostly drew younger buyers who didn’t mind the shorter tenure for a more affordable entry price, while Sherwood is a stalwart in the area.
Moving closer to Beauty World, prices easily cross the $2,000 psf mark but many of those developments (The Reserve Residences, The Linq @ Beauty World, View at Kismis) are integrated or freehold, which naturally command higher premiums.
So while The Sen may stand out as one of the more affordable RCR launches today, within its own neighbourhood, it’s less of a “budget” option and more of a middle-ground play: priced above older projects, but below the integrated and freehold offerings nearer to Beauty World.
Stay tuned for our full pricing review.
The Sen Developer Review
Developer Note
Sustained Land, through its development arm SL Capital, has long carved a niche in Singapore’s mid-sized private residential space. Over the years, they’ve delivered a number of familiar names, including Sky Everton, Coastline Residences, One Meyer, and 3 Cuscaden. All of which share a similar DNA: compact, design-conscious projects with an emphasis on liveability and finish.
So, in many ways, The Sen feels familiar territory for Sustained Land; a mid-sized project that plays to their strengths and what they are familiar with.
That said, Sustained Land’s past launches have shown a tendency to enter the market at optimistic price points (as seen with Coastline Residences, which saw subsequent adjustments post-launch). Whether the same strategy plays out here remains to be seen; though given The Sen’s competitive land cost, they’re likely starting from a more comfortable position this time.
Architect Note
The Sen reunites Sustained Land with AGA Architects, a team they’ve worked with before on projects like Coastline Residences, 3 Cuscaden, and Sturdee Residences.
AGA isn’t known for avant-garde or experimental design, and their style tends to be modern, simple, and practical. You won’t get showpiece architecture here, but you can expect something proportionate, liveable, and easy on the eye.
The Sen Appreciation Analysis
- Future plots in the Immediate Vicinity

Beyond the reserve sites surrounding The Sen, there are also a number of empty residential plots in the immediate vicinity, including one directly beside it, which hints at more activity to come in the years ahead.
While this could bring some level of rejuvenation to the neighbourhood, it also means that parts of the area’s landscape may evolve over time. Still, given The Sen’s position right next to Bukit Batok Nature Park, it’s fair to expect that units facing the park should retain their green, unblocked views for the foreseeable future
- The Rejuvenation of Beauty World

Just a short drive from The Sen, the Beauty World precinct is entering a major phase of rejuvenation, and it’s likely to shape the appeal of the wider Bukit Timah corridor.
The Reserve Residences, which introduces a new residential, retail, and community space anchored by the upcoming Beauty World Integrated Transport Hub. Once completed in 2029, the hub will bring together MRT, bus, and retail connectivity under one roof, effectively transforming Beauty World into a more cohesive and vibrant town centre.
For residents at The Sen, these changes may not translate into immediate walkability, but they do strengthen the long-term fundamentals of the area. A more established and connected Beauty World means stronger support for nearby residential enclaves, especially those positioned as lifestyle-driven or family-oriented (much like The Sen).
- Redevelopment of Bukit Timah Turf City

Just a five-minute drive from The Sen, the upcoming Bukit Timah Turf City redevelopment stands out as one of Singapore’s most anticipated master-planned precincts. The 200-hectare site will eventually house 15,000 to 20,000 new public and private homes, supported by a new Turf City MRT station on the Cross Island Line, and well-integrated with green corridors, schools, retail, and community amenities.

The first GLS parcel within the precinct (the Dunearn Road site) was recently awarded to a Frasers Property, Sekisui House, and CSC Land joint venture at $1,410 psf ppr, marking a strong vote of confidence in the area’s long-term value. A second confirmed list plot is expected to be launched by end-2025, further accelerating the transformation.
As Bukit Timah evolves into a larger, better-connected township, surrounding enclaves like Upper Bukit Timah and Hillview are likely to benefit from the improved accessibility, new amenities, and renewed interest in the western residential belt.
- New Housing at Holland Plain Precinct
While not directly beside The Sen, the upcoming Holland Plain precinct (about an eight-minute drive away), adds to the larger rejuvenation picture of the western city fringe. Anchored near King Albert Park MRT, the site has been earmarked as a future private residential enclave nestled alongside the Rail Corridor and Bukit Timah First Diversion Canal.
The master plan here places strong emphasis on green and water-sensitive urban design, with generous park spaces and low- to mid-rise buildings that blend into the existing landed landscape.

The first plot has already been awarded to Sim Lian at $1,432 psf ppr; a bid that came in 22.2% higher than the next contender. A second plot has also been confirmed on the Reserve List, and is expected to be released in due course.
- Proximity to the Jurong Lake District (JLD)
It’s no secret that the Jurong Lake District (JLD) is positioned as Singapore’s next CBD and it’s a long-term plan that will eventually reshape the western region. Key components include the redevelopment of JCube, as well as three white sites that together can accommodate up to 1,700 residential units, 146,000 sqm of office space, and 73,000 sqm of retail, F&B, and entertainment areas.
That said, progress has been gradual. The mega white site, which was launched for tender earlier this year, was not awarded after the sole bid came in below government expectations. It has since been moved to the Reserve List, to be released only when a developer makes an acceptable offer.
Even so, JLD remains one of Singapore’s most significant long-term transformation projects, and its eventual completion will likely reinforce the appeal of surrounding western precincts, including Upper Bukit Timah, where The Sen is located.
- Proximity to Tengah New Town

Up north of The Sen, Tengah is still in its early phases, but it’s set to become Singapore’s next major heartland town. Planned as a car-lite, sustainability-focused township, Tengah will eventually house around 42,000 new homes spread across five districts, linked by green corridors, community spaces, and the upcoming Jurong Region Line (JRL).
It’ll take time for Tengah to fully take shape, but once it does, it’ll bring a much larger residential catchment and more daily amenities to the west. For now, it’s still some distance away (both physically and in terms of completion), but over the next decade, the ripple effects should gradually reach Bukit Batok and Upper Bukit Timah, adding more vibrancy to what is currently a quieter pocket.
What we like
- Comes with a full suite of facilities despite having just 300+ units
- Larger-than-average unit sizes compared to most new launches today
- Currently the most affordably priced RCR launch in the market
- Windows for most bathrooms
What we don’t like
- –Not within walking distance to MRT station
- –Limited nearby amenities for daily conveniences
- –Modest housing demand in the immediate vicinity so far
Our Take
Positioned in a quieter corner of Upper Bukit Timah, The Sen presents a different kind of appeal: one that leans into space, greenery, and livability rather than proximity to MRT stations or bustling conveniences.
Its pricing reinforces this: starting from $993K for a one-bedder and $1.936 million for a three-bedder, The Sen is priced more like an OCR project than an RCR one. That’s largely down to its land cost (at $841 psf ppr, the lowest for any RCR site in 2025), which gives the developer more room to keep prices competitive while still offering larger-than-usual layouts. That sits comfortably with its positioning as the area’s first GFA-harmonised project, resulting in more usable interior space.
Beyond pricing, The Sen has made some smart choices in design to strengthen its value case. A 1.6 plot ratio gives it some differentiation from its competitors in the immediate vicinity: five blocks on a sizeable footprint, a large pool, and generous 3.9-metre ceilings on the ground and top floors. Inside the units, the effort continues, with a large percentage of layouts featuring windowed bathrooms (a rarity today), and compact units like the 678 sq ft two-bedder proving surprisingly liveable. The larger three-, four- and five-bedroom units also feature horizontal living layouts that are efficient and unusually generous for the area.
Of course, The Sen isn’t without trade-offs. Its location will divide opinions. It’s not for those who rely heavily on MRT access, nor for buyers who prefer city-fringe convenience. It sits in a quieter, more secluded pocket — well-suited to those who value greenery, privacy, and a slower pace of life.
In terms of value, The Sen sits neatly between OCR and RCR in pricing, not the cheapest in its neighbourhood, but there would be appeal for a group of buyers when you consider the space, ceiling height, and thoughtful layouts.
What this means for you
You might like The Sen if you:
-
Appreciate a quieter, more tranquil environment surrounded by greenery
One defining trait of The Sen’s location is its proximity to some of Singapore’s largest nature parks, such as Bukit Batok Nature Park and Bukit Timah Nature Reserve. With low-rise landed homes nearby, the immediate surroundings take on a calm, residential feel, characterised by greenery and open space. However, there are several plots in the vicinity zoned for future residential development, including one right beside The Sen. While this may not significantly change the area’s character, it will likely increase housing density over time.
Are looking for a new home with larger layouts than most new launches todayUnit sizes at The Sen are noticeably more generous than what we’ve seen in many recent launches. Even smaller units like the 2-bedders start from 678 sq ft. For buyers prioritising comfort and liveability over sheer efficiency, these proportions offer a more practical, long-term home. It also helps that the units here come with naturally ventilated bathrooms, and some 2-bedders even feature enclosed kitchens with windows; both increasingly rare in today’s market.
You may not like The Sen if you:
-
Prefer being within walking distance to daily amenities
Accessibility is not one of The Sen’s strongest traits. It is not within walking distance of an MRT Station (Beauty World and Hume MRT Stations are at least 1km away), and while there’s a bus stop just outside the project, most residents might find that driving is the more practical option. Day-to-day conveniences are also limited in the immediate vicinity. Unlike areas such as Beauty World or Hillview, where cafes, supermarkets, and eateries cluster around the MRT, the surroundings here are largely residential.



















